立即预约 立即预约
免费定制整装家居

免费定制整装家居

一站置家 全程无忧 一省到底
hide.png

当前位置: 首页 > 装修案例效果图 > 阳光一百国际新城

阳光一百国际新城 95平 现代简约风格效果图

收藏
案例风格 现代简约 案例户型 二居 案例面积 95平米
楼盘名称 阳光一百国际新城 设计师 林凤设计师 案例类型 婚房

设计理念:本案是现代风格,现代风格整体色系以黑白灰位置,时尚,沉稳,不花俏,整个空间都渗透着商务气息。

客厅
第1张
第2张
第3张
第4张
第5张
餐厅
第1张
卧室
第1张
卫生间
第1张
厨房
第1张
门厅
第1张
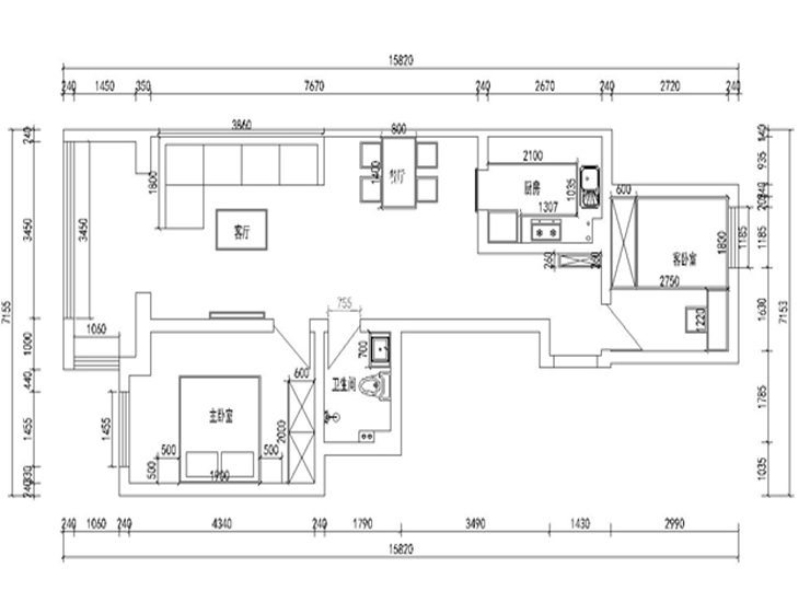
户型图
第1张
  • 案例详情

S4-李卓-阳光一百国际新城-95-现代风格-客厅.jpg S4-李卓-阳光一百国际新城-95-现代风格-客厅1.jpg S4-李卓-阳光一百国际新城-95-现代风格-客厅2.jpg S4-李卓-阳光一百国际新城-95-现代风格-客厅4.jpg S4-李卓-阳光一百国际新城-95-现代风格-客厅3.jpg

客厅以灰色和白色为主,米灰色的地面,和白色墙体为背景,衬托出整体深色家具,门和木制家具都采用深色系,背景墙采用组合电视柜搭配,增加客厅储物空间。

S4-李卓-阳光一百国际新城-95-现代风格-餐厅.jpg

餐厅和客厅再一个空间,两个空间的色系相呼应,墙面挂画也融为一体。餐厅旁边的落地灯采用金属质感的材质,增加了整体空间的奢华感。

S4-李卓-阳光一百国际新城-95-现代风格-主卧室.jpg

卧室以灰色壁纸系为主,搭配橘黄色的软装饰品,显得空间活跃温馨,整个空间都让人睡意满满。

S4-李卓-阳光一百国际新城-95-现代风格-卫生间.jpg

卫生间采用暖色系墙砖,让整体空间温馨暖意十足,一字型浴屏让整体空间干湿分离,让整个空间更方便打理。

S4-李卓-阳光一百国际新城-95-现代风格-厨房.jpg

厨房墙面采用黑色墙砖,搭配白色烤漆橱柜,精美的隐形拉手设计,让厨房在线条感上更美观,高低柜的搭配让功能区的舒适度更合理。

S4-李卓-阳光一百国际新城-95-现代风格-门厅.jpg S4-李卓-阳光一百国际新城-95-现代风格-平面图-Model.jpg

案例设计师

林凤设计师

设计师:林凤设计师

从业时间:5年

设计理念:经验和习惯的沉淀,时尚与美观的结合

预约设计师

算算你家装修多少钱

报名即享丰厚赠品,享半价装修

免费报价
咨询热线:400-656-9909
20190221103704574636.jpg

精品设计案例

20180612134930523248.jpg 服务号二维码.jpg