立即预约 立即预约
免费定制整装家居

免费定制整装家居

一站置家 全程无忧 一省到底
hide.png

当前位置: 首页 > 装修案例效果图 > 尚景新世界

尚景新世界 140平 现代简约风格效果图

收藏
案例风格 现代简约 案例户型 三居 案例面积 140平米
楼盘名称 尚景新世界 设计师 丁强 案例类型 改善性住宅

设计理念:本案是现代简约风格,采用石膏板,乳胶漆,银镜和硬包等材质,棚面运用石膏板吊棚做出区域划分,让整个空间的照明更柔和,棚面的点光源和灯带让空间的氛围光更突出。

客厅
第1张
第2张
第3张
卫生间
第1张
厨房
第1张
书房
第1张
过廊
第1张
第2张
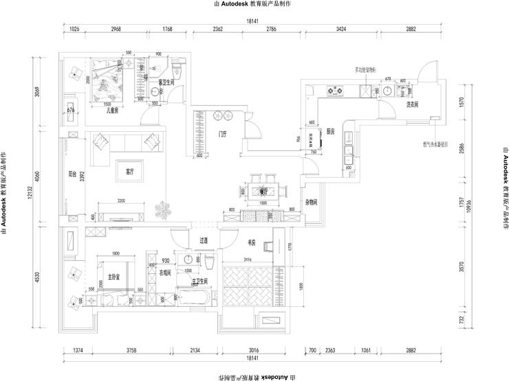
户型图
第1张
  • 案例详情

尚景新世界-140平-现代风格-客厅3.jpg 尚景新世界-140平-现代风格-客厅2.jpg 尚景新世界-140平-现代风格-客厅.jpg

本案客厅用的是抛釉的大地砖,灰色的沙发,餐桌用的是木头和铁艺的结合,旁边配备着卡座与柜的组合配合餐桌。

尚景新世界-140平-现代风格-卫生间.jpg

卫生间地砖上墙的铺贴是现代风格的流行趋势,浅米色的砖给人一种舒适温馨的感觉,淋浴的位置利用浴屏给后期生活带来更大的便捷,简洁的理石壁挂式手盆把空间利用的及其实用。

尚景新世界-140平-现代风格-厨房.jpg

合理的利用好厨房空间,让后期的生活各加便捷实用,采用乳白色的整体橱柜,和灰色系的相互呼应更加整体自然。

尚景新世界-140平-现代风格-榻榻米书房.jpg 尚景新世界-140平-现代风格-过廊.jpg 尚景新世界-140平-现代风格-过廊2.jpg 尚景新世界-140平-现代风格-平面.jpg

案例设计师

丁强

设计师:丁强

从业时间:8年

设计理念:用心观察生活,感悟人生真谛,让设计与生活互动

预约设计师

算算你家装修多少钱

报名即享丰厚赠品,享半价装修

免费报价
咨询热线:400-656-9909
20190221103704574636.jpg

精品设计案例

20180612134930523248.jpg 服务号二维码.jpg