立即预约 立即预约
免费定制整装家居

免费定制整装家居

一站置家 全程无忧 一省到底
hide.png

当前位置: 首页 > 装修案例效果图 > 金地檀府

金地檀府 85平 美式风格效果图

收藏
案例风格 美式 案例户型 二居 案例面积 85平米
楼盘名称 金地檀府 设计师 林凤装饰设计师 案例类型 婚房

设计理念:本方案为简约美式风格,棚顶采用成品石膏线作为主要造型,整体采用淡蓝色作为墙面的主色,利用墨绿色作为点缀提亮了整个空间,使本来单调的空间更加有层次感,使空间更加富有生机

客厅
第1张
第2张
第3张
第4张
餐厅
第1张
卧室
第1张
卫生间
第1张
厨房
第1张
第2张
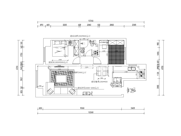
户型图
第1张
  • 案例详情

金地檀府-98平-混搭风格-客厅2.jpg 金地檀府-98平-混搭风格-客厅1.jpg 金地檀府-98平-混搭风格-客厅3.jpg 金地檀府-98平-混搭风格-客厅4.jpg

本案的客厅蓝色的乳胶漆墙面为基础装饰,利用墨绿色作为背景墙的装饰颜色,使整体更加富有层次感,浅咖色色布艺结合的沙发,灰色的釉面地砖,充满了怀旧风情,本案利用石膏板石膏线相结合作为背景墙装饰,增加其美观性,胡桃木色的电视柜与茶几,将其功能性完美的做出了划分,简单却又很和谐,深受业主喜爱。

金地檀府-98平-混搭风格-餐厅.jpg

本案的餐厅与客厅融为一体,采用了方形的餐桌,,与茶几同样采用胡桃木质的餐桌椅,使客厅与餐厅很好的进行了衔接,使空间更加的和谐。

金地檀府-98平-混搭风格-卧室.jpg

本案的卧室,利同样采用墨绿色作为主要墙面装饰,采用白色的衣柜,干净整洁,是整个卧室活跃了起来,利用胡桃木色的挂画边框呼应主题,利用浅米色的布艺床品,使整个卧室更加鲜明,却又不俗气。

金地檀府-98平-混搭风格-卫生间.jpg

本案的卫生间,选择了黄色与褐色相结合的仿古砖,更加具有层次感,提升暖意,浴室柜选择了白色实木的材质,更加的明亮。

金地檀府-98平-混搭风格-厨房.jpg 金地檀府-98平-混搭风格-厨房2.jpg

本案采用封闭式厨房,采用L型橱柜,增加其操作的空间,橱柜采用白色,台面采用了暖黄色的理石,平衡了本来较暖的色调,呼应主题,使整体空间达到干净明亮舒适独特,使业主回家做饭之余能更好的放松心情。

金地檀府-98平-混搭风格-平面布局图.jpg

案例设计师

林凤装饰设计师

设计师:林凤装饰设计师

从业时间:6年

设计理念:万物之始,大道至简,衍化至繁

预约设计师

算算你家装修多少钱

报名即享丰厚赠品,享半价装修

免费报价
咨询热线:400-656-9909
20190221103704574636.jpg

精品设计案例

20180612134930523248.jpg 服务号二维码.jpg