立即预约 立即预约
免费定制整装家居

免费定制整装家居

一站置家 全程无忧 一省到底
hide.png

当前位置: 首页 > 装修案例效果图 > 悦圣湾

悦圣湾 200平 现代简约风格效果图

收藏
案例风格 现代简约 案例户型 二居 案例面积 200平米
楼盘名称 悦圣湾 设计师 林凤设计师 案例类型 改善性住宅

设计理念:简约而不缺乏设计要素,更高层次的创作境界。

客厅
第1张
第2张
第3张
餐厅
第1张
卧室
第1张
卫生间
第1张
厨房
第1张
门厅
第1张
过廊
第1张
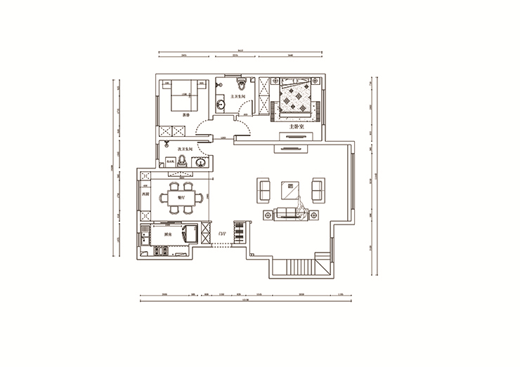
户型图
第1张
悦圣湾-200平-现代风格-电视背景墙.jpg 悦圣湾-200平-现代风格-客厅.jpg 悦圣湾-200平-现代风格-客厅2.jpg

在功能方面,客厅是主任品味的象征,体现了主人品格,地位,也是交友娱乐的场合,电视背景墙采用石膏板做的四个几何造型,既简单又大方。

悦圣湾-200平-现代风格-餐厅.jpg

餐厅是家居生活的心脏,不仅要美观,更重要的实用性,整体性。餐厅的灯光很重要既不能太强又不能太弱,灯光则以温馨和暖的黄色为基调,顶部做了简单的吊顶。

悦圣湾-200平-现代风格-卧室.jpg

设计卧室时应首先考虑让人感到舒适和安静,现代风格多以白色为主,给人一种清新的感觉,一般卧室面积都不大,除摆放双人床,还要留意一定地方摆放衣柜,床头柜。

悦圣湾-200平-现代风格-卫生间.jpg

卫生间的地砖采用暖色,与整个空间形成冷暖差,洗衣机选择嵌入手盆下面,即实用又不失美观。

悦圣湾-200平-现代风格-厨房.jpg

由于厨房空间狭长,底柜设计偏重表现简约风格,虽然形式看似简单,但每个抽屉内部是不尽相同的使用各种内置式抽屉和金属拉篮,为主人提供方便。

悦圣湾-200平-现代风格-玄关.jpg 悦圣湾-200平-现代风格-过廊.jpg 悦圣湾-200平-现代风格-户型图.jpg

案例设计师

林凤设计师

设计师:林凤设计师

从业时间:7年

设计理念:人为生活而设计,设计为生活而存在。

预约设计师

算算你家装修多少钱

报名即享丰厚赠品,品质装修

免费报价
咨询热线:400-656-9909
20190221103704574636.jpg

精品设计案例

20180612134930523248.jpg 服务号二维码.jpg