立即预约 立即预约
免费定制整装家居

免费定制整装家居

一站置家 全程无忧 一省到底
hide.png

当前位置: 首页 > 装修案例效果图 > 龙之梦畅园

龙之梦畅园 180平 现代简约风格效果图

收藏
案例风格 现代简约 案例户型 四居 案例面积 180平米
楼盘名称 龙之梦畅园 设计师 林凤设计师 案例类型 改善性住宅

设计理念:简约而不简单,少就是多。

客厅
第1张
第2张
餐厅
第1张
卧室
第1张
卫生间
第1张
厨房
第1张
儿童房
第1张
衣帽间
第1张
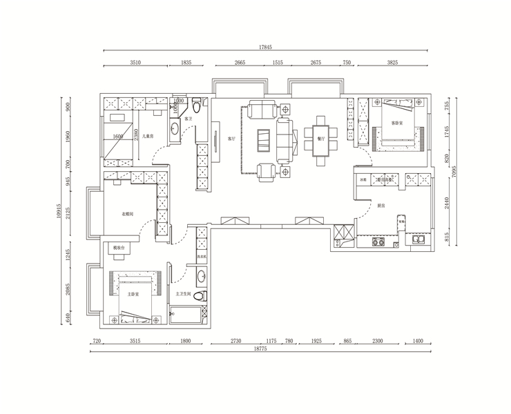
户型图
第1张
  • 案例详情

龙之梦畅园-180平-现代风格-客厅.jpg 龙之梦畅园-180平-现代风格-客厅2.jpg

客厅简洁的表现形式来满足人们对空间环境的情感,本能和理性需求。

龙之梦畅园-180平-现代风格-餐厅.jpg

简约风格设计不仅仅只体现在装修上,而另一部分还体现在家具配饰的搭配,比如小的屋子就不要为了显得阔绰而购买体积比较大的物品,应该购买生活必须的东西,如果能不占面积,可以折叠,功能多样化那就再好不过。

龙之梦畅园-180平-现代风格-卧室.jpg

卧室简约风格色彩设计也是非常重要的,一般都是通过色彩之间来突出简约。而且色彩的选择和物品会起到一定的搭配作用,所以在选择物品或者选择色彩的时候一定要搭配好。

龙之梦畅园-180平-现代风格-卫生间.jpg

卫生间是家庭成员进行个人卫生的重要场所,需要干净,清洁。

龙之梦畅园-180平-现代风格-厨房.jpg

简约厨房的装修整体有一种十足的静谧感。大理石的吧台设计,搭配着简单的吊灯,显得十分的时髦。没有多余的装饰装点,显得小巧温馨。

龙之梦畅园-180平-现代风格-儿童房.jpg

儿童房再设计装修上主要以亮色系为主,除了健康环保,美观的房间可以让孩子的心情更愉悦。

龙之梦畅园-180平-现代风格-衣帽间兼书房.jpg

板式风格衣帽间由不同规格的木板组成,简单,一目了然。

龙之梦畅园-180平-现代风格-户型图.jpg

案例设计师

林凤设计师

设计师:林凤设计师

从业时间:7年

设计理念:人为生活而设计,设计为生活而存在。

预约设计师

算算你家装修多少钱

报名即享丰厚赠品,享半价装修

免费报价
咨询热线:400-656-9909
20190221103704574636.jpg

精品设计案例

20180612134930523248.jpg 服务号二维码.jpg