立即预约 立即预约
免费定制整装家居

免费定制整装家居

一站置家 全程无忧 一省到底
hide.png

当前位置: 首页 > 装修案例效果图 > 小石城

小石城 94平 现代简约风格效果图

收藏
案例风格 现代简约 案例户型 二居 案例面积 94平米
楼盘名称 小石城 设计师 林凤设计师 案例类型 改善性住宅

设计理念:本案为现代风格,全屋采用明亮对比色为切入点,简洁精致,流漏出随性气息。讲究空间利用率。

客厅
第1张
第2张
第3张
第4张
餐厅
第1张
卧室
第1张
卫生间
第1张
厨房
第1张
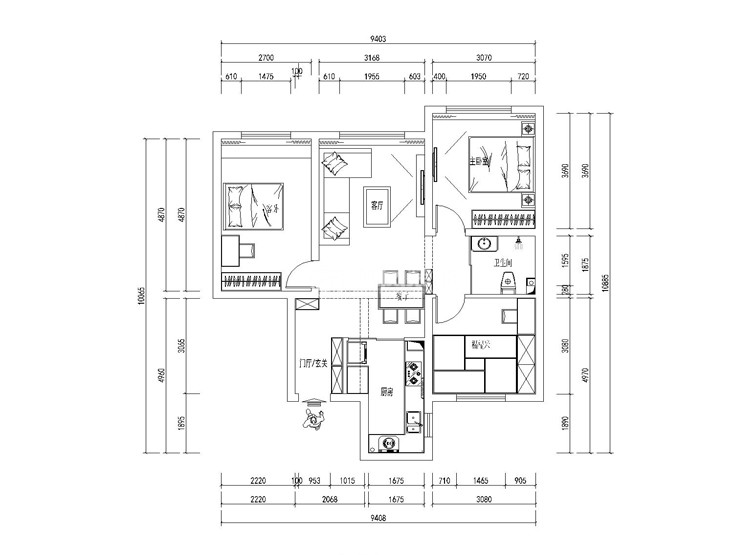
户型图
第1张
  • 案例详情

小石城-94平现代简约风格-客厅00.jpg 小石城-94平现代简约风格-客厅1.jpg 小石城-94平现代简约风格-客厅2.jpg 小石城-94平现代简约风格-客厅沙发背景.jpg

通过家具、吊顶、地面材料、陈列品来表达不同功能空间的划分,颜色的变化多样,让简约的空间洋溢着春天的气息。

小石城-94平现代简约风格-餐厅.jpg

现代风格餐厅设计对色彩的搭配是比较讲究的,墙上的挂画餐座椅的颜色每一处都是你中有我我中有你。

首图.jpg

作为主人的私密空间,主要以功能性以及实用舒适为斟酌的重点

小石城-94平现代简约风格-卫生间.jpg

300*600墙砖做装饰,总之善于融入多种元素 ,带给空间一种简洁大气的质感,营造出原始粗犷的现代卫生间。

小石城-94平现代简约风格-厨房.jpg

白色的釉面的墙砖、橱具门板灰色模压门,烹饪区、清洗区和储物区都会靠墙设计,适合长型区域的厨房,简单明了的直线布置,容易打理。

小石城-94平现代简约风格-平面图.jpg

案例设计师

林凤设计师

设计师:林凤设计师

从业时间:3年

设计理念:设计是一种感受、一种心态、一种舒适的、开心的生活方式。

预约设计师

算算你家装修多少钱

报名即享丰厚赠品,品质装修

免费报价
咨询热线:400-656-9909
20190221103704574636.jpg

精品设计案例

20180612134930523248.jpg 服务号二维码.jpg