立即预约 立即预约
免费定制整装家居

免费定制整装家居

一站置家 全程无忧 一省到底
hide.png

当前位置: 首页 > 装修案例效果图 > 中旅蓝爵

中旅蓝爵 480平 中式风格效果图

收藏
案例风格 中式 案例户型 三居 案例面积 480平米
楼盘名称 中旅蓝爵 设计师 林凤设计师 案例类型 改善性住宅

设计理念:本案是以中式风格为主的设计,颜色厚重而又沉稳,造型朴素而又优美,庄重而又典雅,独特的中国特有色彩的选择体现了中式的文化深沉与厚重,整体的布局形式追求对称庄重,细节的处理上更加倾向于鸟语花香的人文情怀。

客厅
第1张
第2张
餐厅
第1张
卧室
第1张
第2张
第3张
卫生间
第1张
厨房
第1张
过廊
第1张
户型图
第1张
第2张
第3张
  • 案例详情

中旅蓝爵-中式风格-480平-一楼大厅1.jpg 中旅蓝爵-中式风格-480平-一楼大厅2.jpg

没有古典中式的调梁花柱,没有大红大紫的浓妆艳摸,有的只是建议的线条勾勒,质朴的色彩搭配,客厅公共空间的设计更加周正简洁,更加注重人文情怀的应用,沙发背景花鸟鱼虫的写意画卷,顶棚木线与墙面门窗造型的搭配使人置身于画卷之中,回形地砖收边与顶棚角花木线的上下呼应,使空间氛围相得益彰。

中旅蓝爵-中式风格-480平-餐厅.jpg

餐区的选择与设计运用了简单的中式窗画装饰手法,使室外的景色移入到室内,让人在吃饭喝茶的闲暇之余也能品味不同的人生,顶棚与地面的装饰更多的起到了衬托氛围的作用。

中旅蓝爵-中式风格-480平-二楼客卧.jpg 中旅蓝爵-中式风格-480平-二楼主卧.jpg 中旅蓝爵-中式风格-480平-三楼主卧.jpg

主卧室的设计遵循原有建筑特点,利用高挑的举架空间,更加能体现中式庄重,屋脊木梁的设计使高调的空间更加沉稳,简单的线形勾勒使空间更加立体,独有的中式颜色,使空间氛围更加写意,粗狂质朴的家具选择使空间的生活情调更加浓郁。

中旅蓝爵-中式风格-480平-卫生间.jpg

造型石膏板吊棚与大理石地面拼花使空间更加大气,米色石材的运用使空间更加沉稳,厚重的木材选择使空间更具文化特色。菱形的设计使空间更具变化

中旅蓝爵-中式风格-480平-厨房.jpg

开场式的厨房设计使厨房和客厅的空间更加连贯统一,也是整体的空间更加具有特色,橱柜的深灰色门板和米色墙面相得益彰,柜门的颜色使空间的色彩感更加明快。中岛的设计使厨房空间有了更强的使用功能,错落的顶棚设计与地面的理石拼花使厨房空间更加别致多样。

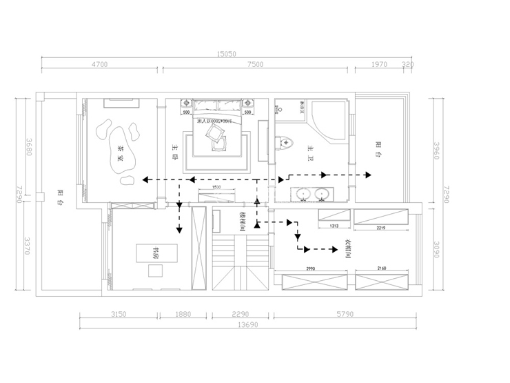
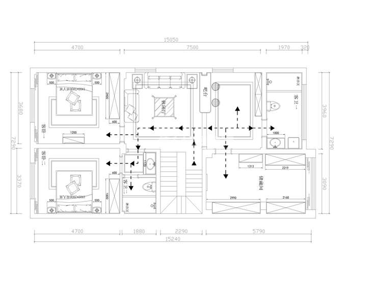
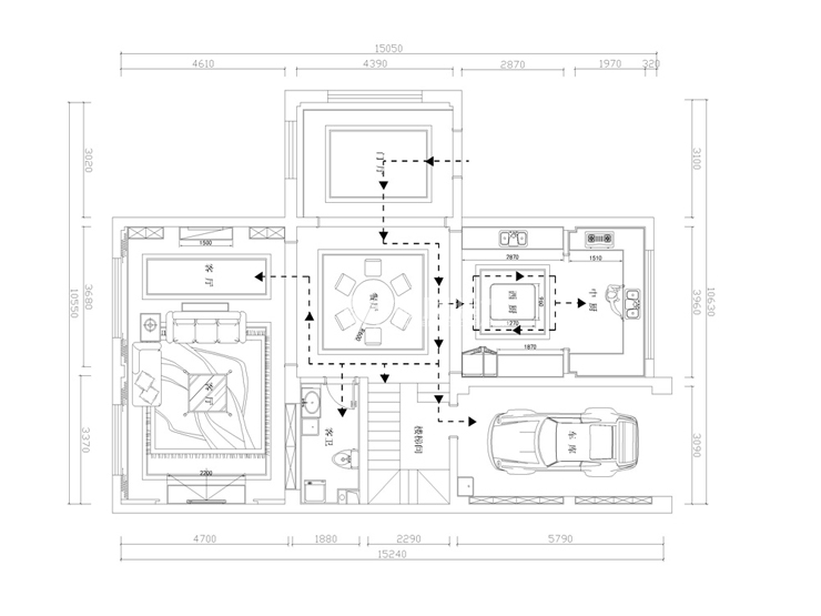
中旅蓝爵-中式风格-480平-过廊.jpg 中旅蓝爵-中式风格-480平-二楼平面图.jpg 中旅蓝爵-中式风格-480平-三楼平面图.jpg 中旅蓝爵-中式风格-480平-一楼平面图.jpg

案例设计师

林凤设计师

设计师:林凤设计师

从业时间:13年

设计理念:设计是用心雕琢的艺术品

预约设计师

算算你家装修多少钱

报名即享丰厚赠品,品质装修

免费报价
咨询热线:400-656-9909
20190221103704574636.jpg

精品设计案例

20180612134930523248.jpg 服务号二维码.jpg