立即预约 立即预约
免费定制整装家居

免费定制整装家居

一站置家 全程无忧 一省到底
hide.png

当前位置: 首页 > 装修案例效果图 > 听雨观澜

听雨观澜 480平 新古典风格效果图

收藏
案例风格 新古典 案例户型 二居 案例面积 480平米
楼盘名称 听雨观澜 设计师 林凤设计师 案例类型 改善性住宅

设计理念:该案设计采用迷情法尔赛设计风格,艺术与时间的雕琢,华贵与空间的妆点,灵魂与人生的交错,缔造出一个艺术殿堂。对原有建筑结构的理解与修改,利用现有的结构空间加以修饰,使其建筑结构更加丰富多彩。穹顶壁画与造景的窗画使空间的得到了艺术的升华。

客厅
第1张
第2张
餐厅
第1张
卧室
第1张
卫生间
第1张
厨房
第1张
休闲区
第1张
第2张
第3张
户型图
第1张
第2张
  • 案例详情

听雨观澜-480平-迷情法尔赛风格-客厅1.jpg 听雨观澜-480平-迷情法尔赛风格-客厅2.jpg

客厅的设计是整个方案的重点,穹顶的造型使客厅空间更显大气,壁画的选择更加的凸显了空间艺术氛围,环抱似的家具选择使客厅人置身在艺术殿堂的环抱之中,罗马柱式的选择更使柔和的顶棚空间更具线条层次感,墙面凹凸的区域分割是空间更加立体,也使展示的绘画区更加丰富。

听雨观澜-480平-迷情法尔赛风格-餐厅.jpg

半跃的原始建筑结构使餐厅空间原本就具备了其他房型所不具备的空间层次感,设计师更是运用墙面连拱的石膏造型与顶棚丰富层次的石膏线性使餐厅空间层次上更加丰富多彩,墙面壁画与顶棚壁画使餐区得到了更好室内外空间效果的延伸。

听雨观澜-480平-迷情法尔赛风格-主卧室.jpg

顶棚层次丰富石膏线造型与墙面的造型良好的结合,使卧室空间装饰性更强,洛可可的装饰效果更突出了女性的柔和,硬朗的罗马柱造型是使主卧空间刚柔相继,灰蓝的布艺与实木地板形成的强烈的冷暖对比,使卧室的色彩空间更具层次。顶棚壁画更是点睛的装饰,使人自身在艺术的空间里。

听雨观澜-480平-迷情法尔赛风格-卫生间.jpg

古朴的瓷砖铺贴是空间更具时代感,更显古朴气息,凹凸的卫浴柜设计使空间层次感更强,仿古瓷砖与简洁的石膏吊顶使空间古朴气息的韵味更浓。

听雨观澜-480平-迷情法尔赛风格--厨房.jpg

厨房柜体做旧的木色颜色选择更显,空间的古朴大气,木梁的运用是墙面的颜色得到了延伸,复古的墙砖更加了凸显了橱柜的古朴大气。

听雨观澜-480平-迷情法尔赛风格-品酒区.jpg 听雨观澜-480平-迷情法尔赛风格-影音室2.jpg 听雨观澜-480平-迷情法尔赛风格-影音室.jpg

设计师运用立柱造型把品酒区设计分为储酒区与品酒交流区,红酒的储酒区与洋酒的展示区,使其功能与装饰性更好的结合到了一起,文化石的运用是更增添了品酒区的氛围感。影音室的设计上更注重的就是氛围与音响,设计师选择了相对独立的地下室下沉区,独立性强不会影响其余空间,装饰折叠门更好的使品酒区与影视室更好的联系到了一起,壁画样式的折叠门更起到了很好的装饰性,灯光的氛围衬托也使空间娱乐性更浓。

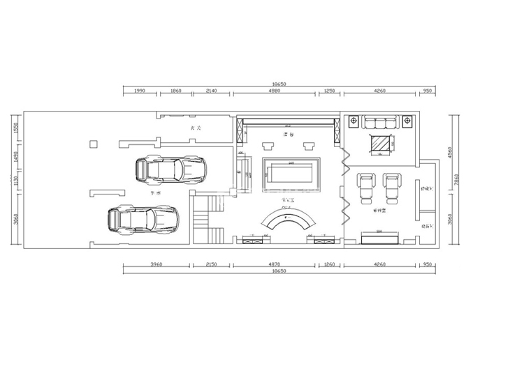
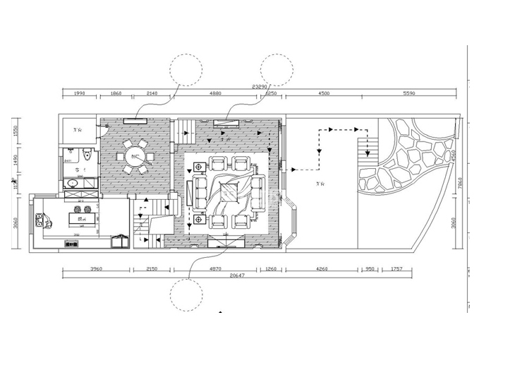
听雨观澜-480平-迷情法尔赛风格-一楼平面图.jpg 听雨观澜-480平-迷情法尔赛风格--地下室平面图.jpg

案例设计师

林凤设计师

设计师:林凤设计师

从业时间:13年

设计理念:设计是用心雕琢的艺术品

预约设计师

算算你家装修多少钱

报名即享丰厚赠品,品质装修

免费报价
咨询热线:400-656-9909
20190221103704574636.jpg

精品设计案例

20180612134930523248.jpg 服务号二维码.jpg