立即预约 立即预约
免费定制整装家居

免费定制整装家居

一站置家 全程无忧 一省到底
hide.png

当前位置: 首页 > 装修案例效果图 > 龙湖西府原著

龙湖西府原著 85平 欧式风格效果图

收藏
案例风格 欧式 案例户型 二居 案例面积 85平米
楼盘名称 龙湖西府原著 设计师 林凤装饰设计师 案例类型 婚房

设计理念:本设计定位欧式风格,以华丽的装饰、浓烈的色彩、精美的造型达到华贵的装饰效果,运用理石,地砖的拼花,装饰石膏线等装饰材料,运用不同的欧式造型去规划每个空间的合理性,整体风格定位与客户的想法协调一致。

客厅
第1张
第2张
第3张
第4张
餐厅
第1张
第2张
卧室
第1张
卫生间
第1张
厨房
第1张
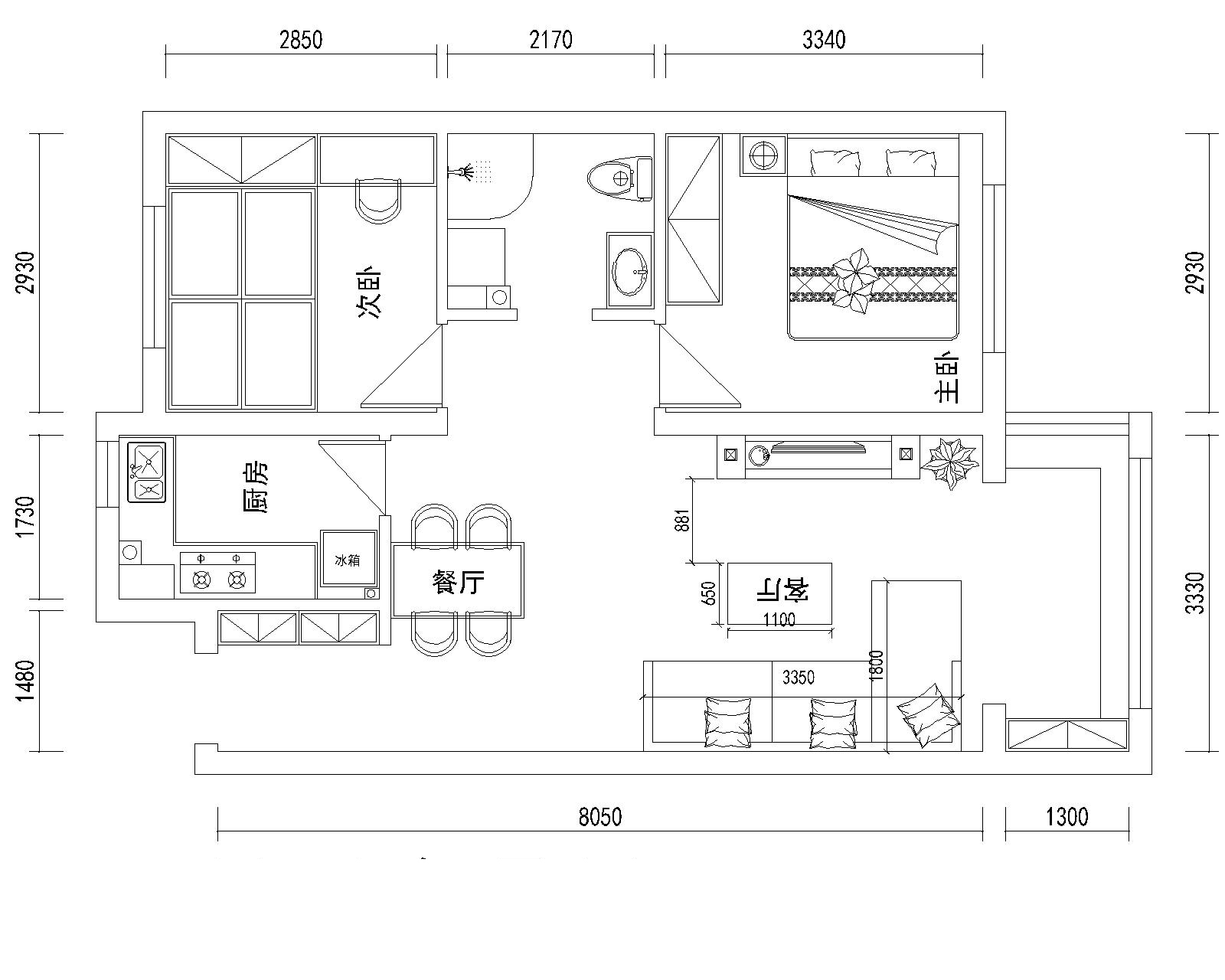
户型图
第1张
  • 案例详情

龙湖西府原著-85平-欧式风格-客厅 (1).jpg 龙湖西府原著-85平-欧式风格-客厅 (2).jpg 龙湖西府原著-85平-欧式风格-客厅 (4).jpg 龙湖西府原著-85平-欧式风格-客厅 (3).jpg

客厅采用暖色地砖作为主色调,客厅简单的直线边棚搭配欧式成品石膏线,整体造型上搭配合理,背景墙采用欧式石膏线造型与壁纸相结合,欧式味道浓厚,整体感觉非常大气。

龙湖西府原著-85平-欧式风格-餐厅 (2).jpg 龙湖西府原著-85平-欧式风格-餐厅.jpg

餐厅区域采用与客厅相连,餐厅处墙面采用欧式壁画装饰,整体空间与可行融为一体,空间上以一个餐厅吊灯与其他空间进行区分,整体搭配合理。

龙湖西府原著-85平-欧式风格-主卧.jpg

卧室深色地板,整体墙面采用壁纸,床头背景采用石膏线造型搭配软包,整体边框内以虚光灯带相衬托,整体卧室看起来既温馨,又大气。

龙湖西府原著-85平-欧式风格-卫生间.jpg

卫生间采用欧式深蓝色仿古砖,上下由腰线分隔开,整体效果非常华贵。

龙湖西府原著-85平-欧式风格-厨房.jpg

厨房采用暖色仿古瓷砖,搭配白色吸塑造型的橱柜及暖色台面,与整体设计风格相呼应,更满足了业主对厨房的要求。

西府原著85平面.jpg

案例设计师

林凤装饰设计师

设计师:林凤装饰设计师

从业时间:10年

设计理念:合理划分空间,让设计融入生活,营造自然、品味、格调。

预约设计师

算算你家装修多少钱

报名即享丰厚赠品,品质装修

免费报价
咨询热线:400-656-9909
20190221103704574636.jpg

精品设计案例

20180612134930523248.jpg 服务号二维码.jpg