立即预约 立即预约
免费定制整装家居

免费定制整装家居

一站置家 全程无忧 一省到底
hide.png

当前位置: 首页 > 装修案例效果图 > 保利心语花园

保利心语花园 131平 现代简约风格效果图

收藏
案例风格 现代简约 案例户型 三居 案例面积 131平米
楼盘名称 保利心语花园 设计师 林凤装饰设计师 案例类型 改善性住宅

设计理念:本案风格定位现代风格,设计师通过运用现代造型的线条美感的设计来实现每个空间的美感,线条柔软雅致,整个设计别有一番风味,并且装饰材料选择适当合理。

客厅
第1张
第2张
第3张
第4张
餐厅
第1张
第2张
卧室
第1张
卫生间
第1张
厨房
第1张
第2张
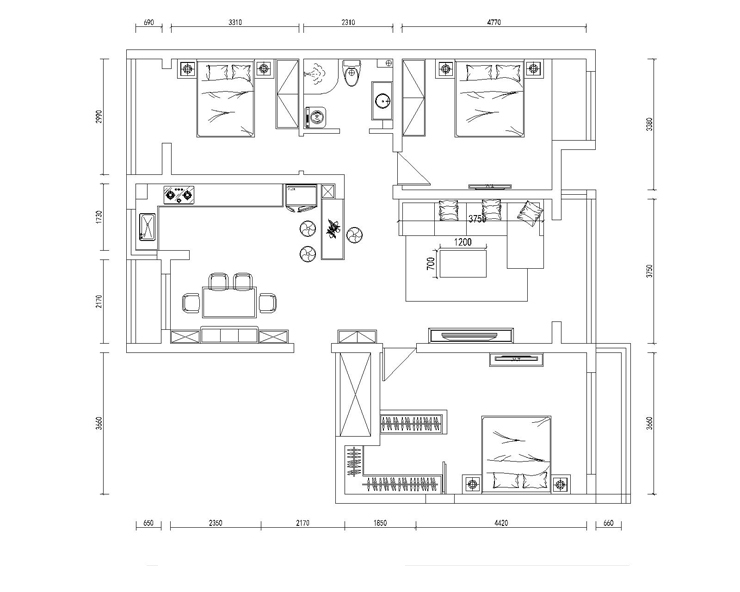
户型图
第1张
  • 案例详情

保利心语-131平-现代风格-客厅 (4).jpg 保利心语-131平-现代风格-客厅 (2).jpg 保利心语-131平-现代风格-客厅.jpg 保利心语-131平-现代风格-客厅 (3).jpg

客厅采用灰色理石纹理瓷砖,客厅采用直线边棚与其他空间隔开,整体客厅墙面采用灰蓝色,区别于顶面的白色,整体给别人一个层次感,也提高了装修的档次,整体材质的互相搭配合理,装修效果很好。

保利心语-131平-现代风格-餐厅 (2).jpg 保利心语-131平-现代风格-餐厅.jpg

餐厅是与厨房连在一起的,吊棚采用与客厅区域不同的顶角线,餐厅墙面采用酒柜作为装饰,增加整个餐厅画面的饱满度,也满足业主的需求。

保利心语-131平-现代风格-卧室.jpg

主卧地板采用实木地板,墙面也同样采用了灰色壁纸与客厅形成呼应,再搭配相协调的实木床及床头柜,整体空间看起来协调一致,尽显大气。

保利心语-131平-现代风格-卫生间.jpg

卫生间采用暖色理石纹理瓷砖,搭配原木色的卫浴,显得卫生间更简单大气,也从整体色彩上与装饰风格形成了简单的呼应。

保利心语-131平-现代风格-厨房.jpg 保利心语-131平-现代风格-厨房2.jpg

客户厨房采用原木色橱柜搭配深灰色仿古瓷砖,更加淋漓尽致的突显出大气而宽敞的厨房空间,解决了业主的要求。

保利心语平面.jpg

案例设计师

林凤装饰设计师

设计师:林凤装饰设计师

从业时间:10年

设计理念:合理划分空间,让设计融入生活,营造自然、品味、格调。

预约设计师

算算你家装修多少钱

报名即享丰厚赠品,品质装修

免费报价
咨询热线:400-656-9909
20190221103704574636.jpg

精品设计案例

20180612134930523248.jpg 服务号二维码.jpg