立即预约 立即预约
免费定制整装家居

免费定制整装家居

一站置家 全程无忧 一省到底
hide.png

当前位置: 首页 > 装修案例效果图 > 御景·新世界

御景·新世界 242平 现代简约风格效果图

收藏
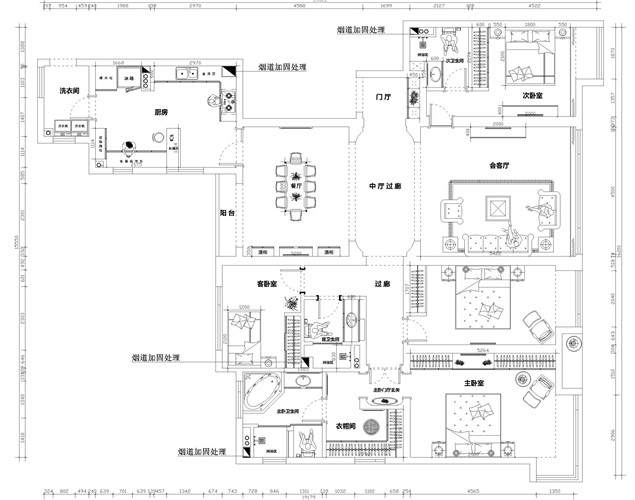
案例风格 现代简约 案例户型 四居 案例面积 242平米
楼盘名称 御景·新世界 设计师 林凤设计师 案例类型 改善性住宅

设计理念:本案以理石及原木色家具搭配结合简约的石膏板直线棚,为业主打造一个专属他们的现代风格。

  • 案例详情

设计九部-石浩然-御景新世界-242㎡-现代风格-客厅 (3).jpg 设计九部-石浩然-御景新世界-242㎡-现代风格-客厅 (1).jpg 设计九部-石浩然-御景新世界-242㎡-现代风格-客厅 (4).jpg 设计九部-石浩然-御景新世界-242㎡-现代风格-客厅 (5).jpg 设计九部-石浩然-御景新世界-242㎡-现代风格-客厅 (6).jpg 设计九部-石浩然-御景新世界-242㎡-现代风格-客厅 (7).jpg

客厅背景墙为隐形门做出对称造型,增加了背景墙长度的同时,使卧室门与背景墙合二为一,沙发背景墙软包作为装饰突出层次感。

设计九部-石浩然-御景新世界-242㎡-现代风格-餐厅 (1).jpg 设计九部-石浩然-御景新世界-242㎡-现代风格-餐厅 (2).jpg 设计九部-石浩然-御景新世界-242㎡-现代风格-餐厅 (3).jpg

餐厅以理石台面餐桌搭配皮质餐椅,体现现代简约的感觉。

设计九部-石浩然-御景新世界-242㎡-现代风格-主卧室 (1).jpg 设计九部-石浩然-御景新世界-242㎡-现代风格-主卧室 (2).jpg

主卧室家具是房主现有家具,搭配对称造型硬包背景墙,双头石膏板对称造型。

设计九部-石浩然-御景新世界-242㎡-现代风格-洗衣间.jpg

主卫生间以素色横纹瓷砖作为墙面设计亮点,使得整体卫生间视觉空间更加宽大,地砖横竖铺贴增加地面设计的层次感。客卫生间以咖啡色瓷砖搭配暗纹雕刻腰线,突出客卫生间的中式感觉。

设计九部-石浩然-御景新世界-242㎡-现代风格-厨房.jpg

厨房以白色橱柜搭配灰色亚光墙砖,中间设计岛台增加实用性的同时,可以让主人空调制作一些面食,使得厨房为一家人增加一个能一起下厨的快乐时光。

设计九部-石浩然-御景新世界-242㎡-现代风格-平面布置图.jpg

案例设计师

林凤设计师

设计师:林凤设计师

从业时间:10年

设计理念:用心观察生活,感悟人生真谛,让设计与生活互动。

预约设计师

算算你家装修多少钱

报名即享丰厚赠品,享半价装修

免费报价
咨询热线:400-656-9909
20190221103704574636.jpg

精品设计案例

20180612134930523248.jpg 服务号二维码.jpg