立即预约 立即预约
免费定制整装家居

免费定制整装家居

一站置家 全程无忧 一省到底
hide.png

当前位置: 首页 > 装修案例效果图 > 华润24城

华润24城 133平 现代简约风格效果图

收藏
案例风格 现代简约 案例户型 三居 案例面积 133平米
楼盘名称 华润24城 设计师 林凤装饰设计师 案例类型 改善性住宅

设计理念:现代风格在处理空间方面强调室内空间宽敞、室内通透,最大限度引入自然光。该案例基调明快,为业主创造出舒适、自然的居住氛围。色彩给人清新舒适之感,回家后扫清一天的匹配。

客厅
第1张
第2张
第3张
餐厅
第1张
第2张
卧室
第1张
卫生间
第1张
厨房
第1张
阳台
第1张
过廊
第1张
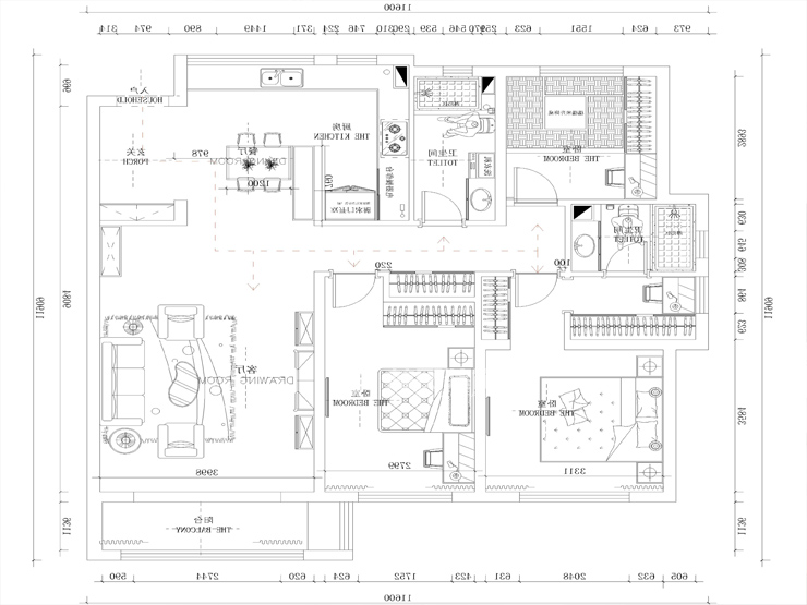
户型图
第1张
  • 案例详情

华润24城-133平-现代风格-客厅2.jpg 华润24城-133平-现代风格-客厅3.jpg 华润24城-133平-现代风格-客厅.jpg

客厅以白色作为基地,搭配一些赵兴简洁颜色鲜艳的沙发和茶几,营造出清新活跃的氛围。

华润24城-133平-现代风格-餐厅.jpg 华润24城-133平-现代风格-餐厅2.jpg

餐厅和厨房在一起做一个整体得空间,做一个吧台。有时可以喝酒有时吃早餐。

华润24城-133平-现代风格-卧室.jpg 华润24城-133平-现代风格-卫生间.jpg 华润24城-133平-现代风格-厨房.jpg

半封闭式的厨房,用细框黑色玻璃移门作为间隔,空间更加的开阔,白色的墙面配干净的墙砖,白色简洁的柜门,带来清爽洁净的视觉感受。

华润24城-133平-现代风格-阳台.jpg 华润24城-133平-现代风格-过道.jpg 华润24城-133平-现代风格-户型图.jpg

案例设计师

林凤装饰设计师

设计师:林凤装饰设计师

从业时间:10年

设计理念:设计源于生活,生活改变人生

预约设计师

算算你家装修多少钱

报名即享丰厚赠品,享半价装修

免费报价
咨询热线:400-656-9909
20190221103704574636.jpg

精品设计案例

20180612134930523248.jpg 服务号二维码.jpg