立即预约 立即预约
免费定制整装家居

免费定制整装家居

一站置家 全程无忧 一省到底
hide.png

当前位置: 首页 > 装修案例效果图 > 大东金地檀悦

大东金地檀悦 110平 新中式风格效果图

收藏
案例风格 新中式 案例户型 三居 案例面积 110平米
楼盘名称 大东金地檀悦 设计师 林凤装饰设计师 案例类型 改善性住宅

设计理念:装饰诠释生活品质!

客厅
第1张
餐厅
第1张
卧室
第1张
第2张
卫生间
第1张
厨房
第1张
过廊
第1张
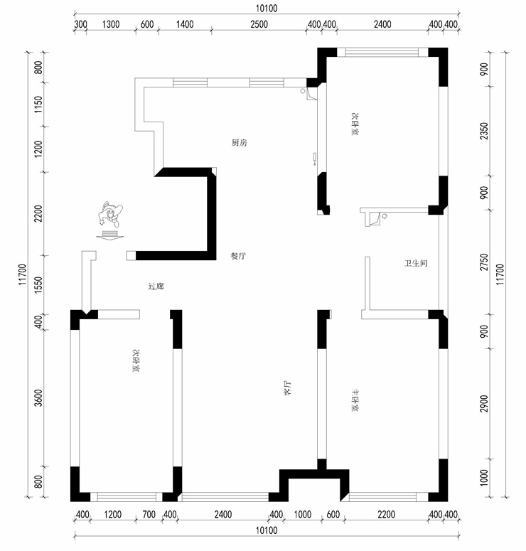
户型图
第1张
  • 案例详情

金地檀悦-110平-新中式风格-客厅.jpg

客厅空间比较合理,地面上客厅和餐厅的分割部分做了波打线,在顶棚装饰运用了实木线条,背景墙上定制了无妨壁画,来诠释中式意境和淡雅,

金地檀悦-110平-新中式风格-餐厅.jpg

餐厅空间原本是比较常规的格局,只是餐厅与过廊相通没有区域感,为了让餐厅空间平衡,于是在过廊中间做了展示柜,起到了分割和展示双重作用。

金地檀悦-110平-新中式风格-次卧.jpg 金地檀悦-110平-新中式风格-主卧.jpg

卧室空间最需要的是安静睡眠,这里不需要浮夸的设计和造型,两盏灯,一抹温馨的色彩就会让卧室安逸自然。

金地檀悦-110平-新中式风格-卫生间.jpg

本案卫生间是综合一体式结构,在坚固到使用的同时也让空间大幅度的提升,在满足洗漱、洗衣、坐便的同时也兼顾了淋雨功能,这样的设计最大的好处就是空间利用率比较高。

金地檀悦-110平-新中式风格-厨房.jpg

厨房空间大多都采用推拉设计,目的是让开关门都不占用空间,本案里做了三门联动,让厨房里外都有一定的贯穿性,美观与实用为一体,厨房内要求功能动线合理就好。

金地檀悦-110平-新中式风格-过廊.jpg 金地檀悦-110平-新中式风格-平面.jpg

案例设计师

林凤装饰设计师

设计师:林凤装饰设计师

从业时间:14年

设计理念:设计生活空间 提升品质生活

预约设计师

算算你家装修多少钱

报名即享丰厚赠品,品质装修

免费报价
咨询热线:400-656-9909
20190221103704574636.jpg

精品设计案例

20180612134930523248.jpg 服务号二维码.jpg