立即预约 立即预约
免费定制整装家居

免费定制整装家居

一站置家 全程无忧 一省到底
hide.png

当前位置: 首页 > 装修案例效果图 > 中海国际社区御河

中海国际社区御河 160平 美式风格效果图

收藏
案例风格 美式 案例户型 三居 案例面积 160平米
楼盘名称 中海国际社区御河 设计师 林凤装饰全案设计师 案例类型 改善性住宅

设计理念:本案主要以简美风格为主,男女主人对生活的舒适度比较高,所以本案以简美风格为主。

客厅
第1张
第2张
第3张
第4张
餐厅
第1张
卧室
第1张
卫生间
第1张
厨房
第1张
门厅
第1张
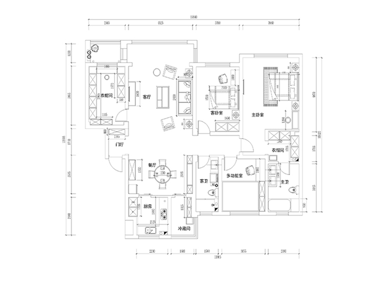
户型图
第1张
  • 案例详情

中海国际社区御河-160-简美-客厅1.jpg 中海国际社区御河-160-简美-客厅2.jpg 中海国际社区御河-160-简美-客厅4.jpg 中海国际社区御河-160-简美-客厅3.jpg

客厅背景墙有一个卧室门,所以在设计上把卧室门涵盖在背景墙里,让背景墙中心与主灯对称,沙发背景的设计与电视背景进行呼应。

中海国际社区御河-160-简美-餐厅.jpg

餐桌的选择上采用圆型餐桌,让比较规矩的餐厅,更加富有流动性。

中海国际社区御河-160-简美-主卧室.jpg

主卧室中床头设计与客厅统一,突出主次墙面的对比,与家具的完美搭配。

中海国际社区御河-160-简美-卫生间.jpg

卫生间墙砖的灰色墙砖,与浴柜的完美搭配。

中海国际社区御河-160-简美-厨房.jpg

厨房采用的半开放式设计,橱柜采用白色橱柜,配合仿理石纹墙砖,把橱柜衬托出来。让空间层次更加分明。

中海国际社区御河-160-简美-门厅.jpg 中海国际社区御河-160-简美-平面图.jpg

案例设计师

林凤装饰全案设计师

设计师:林凤装饰全案设计师

从业时间:12年

设计理念:应时而变,为未来生活而设计

预约设计师

算算你家装修多少钱

报名即享丰厚赠品,享半价装修

免费报价
咨询热线:400-656-9909
20190221103704574636.jpg

精品设计案例

20180612134930523248.jpg 服务号二维码.jpg