立即预约
免费定制整装家居
一站置家 全程无忧 一省到底
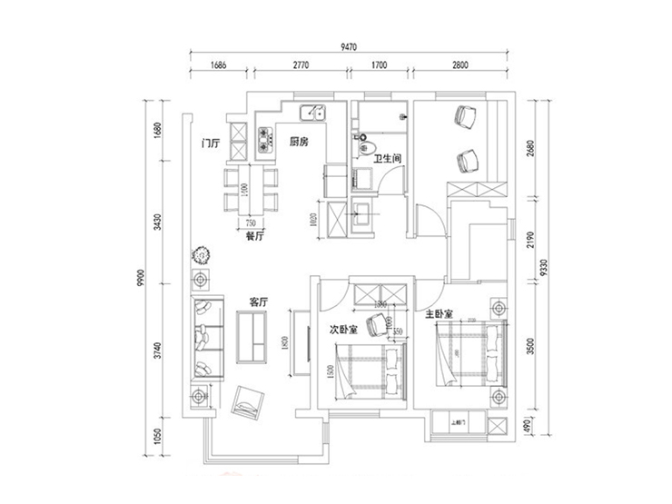
设计理念:本案的设计理念出自于业主对装修风格的特殊要求,业主喜欢黑白对比鲜明的色彩感觉,所以本案定义为后现代风格。
案例详情
客厅作为整个室内重要的一部分,棚面设计上采用层次分明的直线吊棚,电视墙面采用仿理石纹理的地砖上墙配合灰色镜片设计,突出背景墙与其他墙面的主次之分,让整体空间立体感更加强烈。
虽然本案餐厅不大,但是整体空间棚面设计即让区域分割,又相互协调。
由于卧室主要是颜色的搭配,所以整体设计上主要让空间在家具的搭配更加具有立体感。
卫生间主要是瓷砖颜色与洁具的搭配,在瓷砖的选择上采用哑光瓷砖,增加整体立体感。
精品设计案例
设计说明:
三室两厅一厨两卫,高层整体采用美式风格,色调以深色为主,体现美式的居家感和温馨感。
设计说明:
本案业主为年轻时尚小两口,所以我们考虑到未来想要给未来宝宝一个温馨舒适的一个房间,所以本案整体采用现代风格的手法,运用颜色,来打造整体空间的设计感及时尚感
设计说明:
本案以北欧风格为主题的设计,北欧风格能以现代、简洁、自然的特点俘获人心,所营造出来的生活氛围会让人倍感舒适与自在。
设计说明:
客户是一名成功人士,对于家的执念就是简单干净,客户衣服比较多,所以把每个空间都做了大衣柜,并且融入到设计里