立即预约 立即预约
免费定制整装家居

免费定制整装家居

一站置家 全程无忧 一省到底
hide.png

当前位置: 首页 > 装修案例效果图 > 龙湖花千树

龙湖花千树 145平 工业风风格效果图

收藏
案例风格 工业风 案例户型 三居 案例面积 145平米
楼盘名称 龙湖花千树 设计师 林凤装饰全案设计师 案例类型 改善性住宅

设计理念:本案是以工业材料质感比较强烈为主的设计方案,本案设计中即保留业主对工业质感的追求又不失对生活细节的把控,让工业质感的张狂与对生活品质细腻要求的完美结合。

客厅
第1张
第2张
餐厅
第1张
第2张
卧室
第1张
卫生间
第1张
厨房
第1张
第2张
儿童房
第1张
衣帽间
第1张
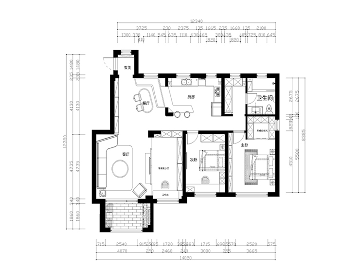
户型图
第1张
  • 案例详情

龙湖花千树-145-工业风-客厅2.jpg 龙湖花千树-145-工业风-客厅1.jpg

在规规矩矩的客厅中,摆放一组私人定制的布艺沙发,让来访的朋友们感受到主人对生活自由向往的追求,棚面无主灯的设计,也同样使空间变化多样。

龙湖花千树-145-工业风-餐厅1.jpg 龙湖花千树-145-工业风-餐厅3.jpg

餐厅的定制卡座设计与客厅的定制沙发进行呼应,让餐厅的动线感更加强烈。

龙湖花千树-145-工业风-主卧室2.jpg

主卧室中床头设计简单时尚,整面书柜的设计体现主人对知识的热爱,随手捏来,随意摆放,自由自在的生活

龙湖花千树-145-工业风-卫生间1.jpg

7.卫生间墙砖的深浅色搭配,让空间视觉感觉变大。

龙湖花千树-145-工业风-厨房2.jpg 龙湖花千树-145-工业风-厨房3.jpg

8.厨房采用的开放式设计,吧台的设计贯穿厨房与餐厅和过廊,让整体空间更加开阔。

龙湖花千树-145-工业风-儿童卧室1.jpg

由于是男孩房间,所以墙面采用蓝色,整体家具以白色为主,书桌的设计,让孩子在学习完看看窗外的景色,放松心情。

龙湖花千树-145-工业风-衣帽间.jpg 龙湖花千树-145-工业风-平面图.jpg

案例设计师

林凤装饰全案设计师

设计师:林凤装饰全案设计师

从业时间:12年

设计理念:应时而变,为未来生活而设计

预约设计师

算算你家装修多少钱

报名即享丰厚赠品,品质装修

免费报价
咨询热线:400-656-9909
20190221103704574636.jpg

精品设计案例

20180612134930523248.jpg 服务号二维码.jpg