立即预约 立即预约
免费定制整装家居

免费定制整装家居

一站置家 全程无忧 一省到底
hide.png

当前位置: 首页 > 装修案例效果图 > 金地长青湾

金地长青湾 210平 欧式风格效果图

收藏
案例风格 欧式 案例户型 五居 案例面积 210平米
楼盘名称 金地长青湾 设计师 林凤装饰设计 案例类型 改善性住宅

设计理念:在法式风格设计中讲究点缀自然,追求色彩,设计上讲究回归自然,给人高贵优雅感觉。

客厅
第1张
餐厅
第1张
第2张
卧室
第1张
卫生间
第1张
厨房
第1张
书房
第1张
衣帽间
第1张
门厅
第1张
第2张
户型图
第1张
  • 案例详情

金地长青湾-210平-法式风格-客厅.jpg

客厅风格采用方形吊顶,在吊顶处做装饰,配上水晶吊灯增加了空间感,沙发多以利用描金、描银技术,装饰画、壁纸、挂画都采用花草元素,塑造富有自然美的客厅环境。

金地长青湾-210平-法式风格-餐厅.jpg 金地长青湾-210平-法式风格-餐厅2.jpg

餐厅风格采用圆形吊顶,地面选择通铺客厅瓷砖,增加了整体感,餐桌和餐椅略带雕花,在鲜花和吊灯的搭配下,清新感扑面而来。

金地长青湾-210平-法式风格-卧室.jpg

卧室整体以白色为主,雕花的金属床头,充分体现法式风格的贵族气息,用深色的抱枕来调节空间的对比性,散发着浓郁的法式古典气息。

金地长青湾-210平-法式风格-卫生间.jpg

卫生间要给人宽敞舒适的感觉,空间也足够大,可以把浴屏和浴缸同时放入,也解决了给小孩洗澡的问题,双人手盆和宽大的镜面给人一份扩容感,在奢华中展现了时尚的前卫。

金地长青湾-210平-法式风格-厨房.jpg

厨房设计为U型设计,橱柜则采用浅蓝色系柜体,墙面则采用理石纹理瓷片,整体格局显现出一份宽敞舒适的感觉。

金地长青湾-210平-法式风格-书房.jpg

书房是家庭里的独立思考空间,一张双人办公桌,男主人平时喜欢看书,所以在一旁设立了书架,简单又实用。

金地长青湾-210平-法式风格-衣帽间.jpg

独立式衣帽间设计,防尘效果极佳,使储存空间更加完整,岛台的放置位置处于整个空间的中心,保证了两个人可是同时自由行走。

金地长青湾-210平-法式风格-门厅2.jpg 金地长青湾-210平-法式风格-门厅.jpg

打开大门人眼就是门厅上方的水晶灯,为了让门厅与餐厅区分,地面铺饰造型,为了墙面不显得单调,在墙面粘贴花色壁纸。

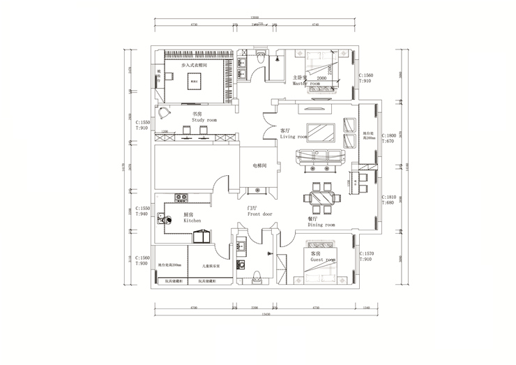
金地长青湾-210平-法式风格-户型图.jpg

案例设计师

林凤装饰设计

设计师:林凤装饰设计

从业时间:9年

设计理念:追求艺术带给生活最美的体验

预约设计师

算算你家装修多少钱

报名即享丰厚赠品,品质装修

免费报价
咨询热线:400-656-9909
20190221103704574636.jpg

精品设计案例

20180612134930523248.jpg 服务号二维码.jpg