立即预约 立即预约
免费定制整装家居

免费定制整装家居

一站置家 全程无忧 一省到底
hide.png

当前位置: 首页 > 装修案例效果图 > 金地铁西檀府

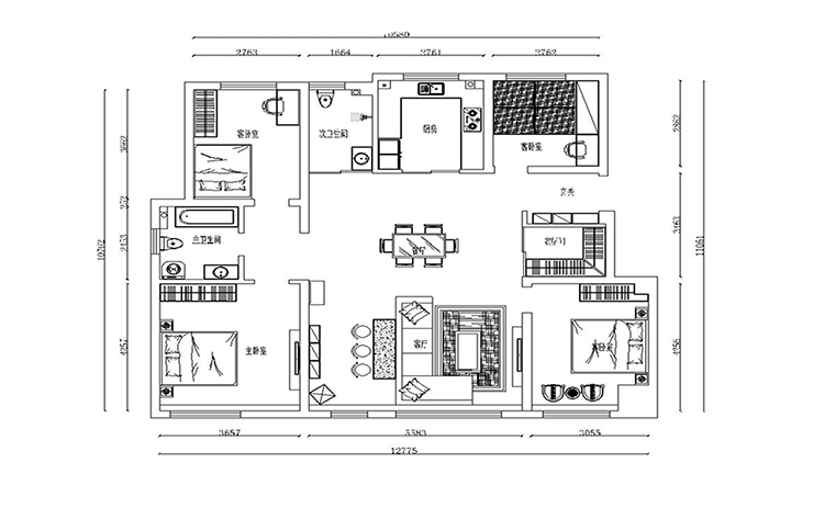
金地铁西檀府 155平 现代简约风格效果图

收藏
案例风格 现代简约 案例户型 四居 案例面积 155平米
楼盘名称 金地铁西檀府 设计师 林凤装饰 案例类型 改善性住宅

设计理念:本方案以后现代风格为主题,整体空间以黑白灰为主,简简单单的造型设计,比较冷淡的设计颜色搭配,整体空间给人一种冷静,干净的感觉。颜色采用的很单一、造型也没有很复杂,但是整体空间看起来却没有显得很空。

  • 案例详情

20180623165634165231.jpg 20180623165638313684.jpg 20180623165632523880.jpg 20180623165639297286.jpg 20180623165802333239.jpg

本案的客厅采用灰色调的现代造型沙发,典型的2+1+2模式,在配上白色和黑色的丝绒抱枕,一下提升了整体空间的格调。边棚和成品石膏线的结合,也为简单空间中增加了一些造型元素。由于开间很宽,所以在沙发背后设置了一个开放式的书房,背后吧台台面采用黑色大理石,吧体则是采用了白色的抽屉柜,配上同色系的书柜,就形成了一个开放式的小工作空间,也为整体空间增添了一丝商务感。

20180623165835328378.jpg 20180623165838973083.jpg 20180623165835531597.jpg 20180623165839621081.jpg 20180623165841626217.jpg

本案的餐厅跟客厅是一体的,打破了传统的餐桌靠墙设计,摆在地中间的六人桌,搭配纯白色的餐椅,和铁艺吊灯,很好的跟客厅进行了融合,没有显得很突兀。但又框出了用餐的区域。

20180623165917170971.jpg

本案的卫生间采用黑色墙砖搭配黑白格地砖,灰色的洁具,使整个空间看起来高端了不少,当然,也很好的符合了后现代实用性的主题。

20180623165919643878.jpg

本案的厨柜是采用纯白色的UV漆材质,搭配灰色的地砖,显得干净而又明亮。米黄色的墙砖使整个厨房显得不是那么的冷淡,增添了一丝暖意。

20180623165937638906.jpg

案例设计师

林凤装饰

设计师:林凤装饰

从业时间:15年

设计理念:用心感受生活,用设计完善空间,让设计与生活空间完美结合。

预约设计师

算算你家装修多少钱

报名即享丰厚赠品,品质装修

免费报价
咨询热线:400-656-9909
20190221103704574636.jpg

精品设计案例

20180612134930523248.jpg 服务号二维码.jpg