立即预约 立即预约
免费定制整装家居

免费定制整装家居

一站置家 全程无忧 一省到底
hide.png

当前位置: 首页 > 装修案例效果图 > 五矿弘园

五矿弘园 66平 北欧风格效果图

收藏
案例风格 北欧 案例户型 一居 案例面积 66平米
楼盘名称 五矿弘园 设计师 林凤装饰设计师 案例类型 婚房

设计理念:本案以北欧主的设计,作品名为《繁书》。全案设计以实用性储物性为主要设计思路,加上温馨的北欧风格设计,营造温馨慵懒的居住环境。

客厅
第1张
第2张
第3张
餐厅
第1张
第2张
卧室
第1张
卫生间
第1张
厨房
第1张
阳台
第1张
门厅
第1张
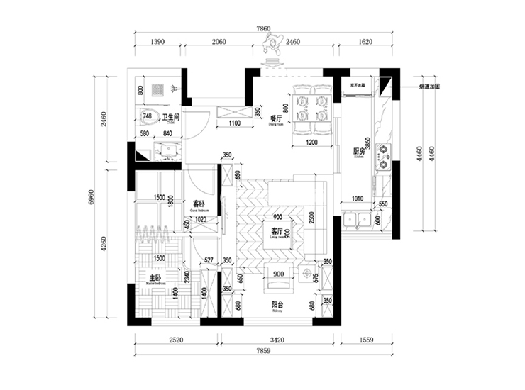
户型图
第1张
  • 案例详情

20180627115327523056.jpg 20180627115327473837.jpg 20180627115327758190.jpg

客户个人喜欢读书,私人书籍比较多,想要收藏书籍的地方,我将业主的书籍作为家庭装饰的重要元素,增加了大量的储物书柜,以书为点缀,搭配淡蓝色沙发和黄色抱枕,搭配以原木色,营造温馨舒适的居住氛围。

20180627115340588067.jpg 20180627115340655825.jpg

餐厅部分采用北欧传统设计思路,原木色餐桌搭配工业吊灯,配上组合挂画,整体餐厅空间既美观又实用。

20180627115409297259.jpg

北欧风格卧室,采用原木色榻榻米设计,增加整体储物空间,色彩简洁明快,以白色原木色为主,整体空间实用温馨。

20180627115420494958.jpg

卫生间墙地选择米黄色系列的木纹砖搭配黑色大理石地面砖,淋浴房的独特设计分开了空间的干湿分离,整体卫生间空间简洁大气。

20180627115431811172.jpg 20180627115507260949.jpg 20180627115459840780.jpg 20180627115443929248.jpg

案例设计师

林凤装饰设计师

设计师:林凤装饰设计师

从业时间:4年

设计理念:因人而异的设计才是好设计

预约设计师

算算你家装修多少钱

报名即享丰厚赠品,品质装修

免费报价
咨询热线:400-656-9909
20190221103704574636.jpg

精品设计案例

20180612134930523248.jpg 服务号二维码.jpg