立即预约 立即预约
免费定制整装家居

免费定制整装家居

一站置家 全程无忧 一省到底
hide.png

当前位置: 首页 > 装修案例效果图 > 奉天九里

奉天九里 98平 美式风格效果图

收藏
案例风格 美式 案例户型 二居 案例面积 98平米
楼盘名称 奉天九里 设计师 林凤装饰设计师 案例类型 婚房

设计理念:本案例合理的空间规划,全屋竖纹壁纸,是整个空间视觉更敞亮,举架更高。做出实用性更好的家。

客厅
第1张
第2张
第3张
餐厅
第1张
卧室
第1张
第2张
卫生间
第1张
厨房
第1张
过廊
第1张
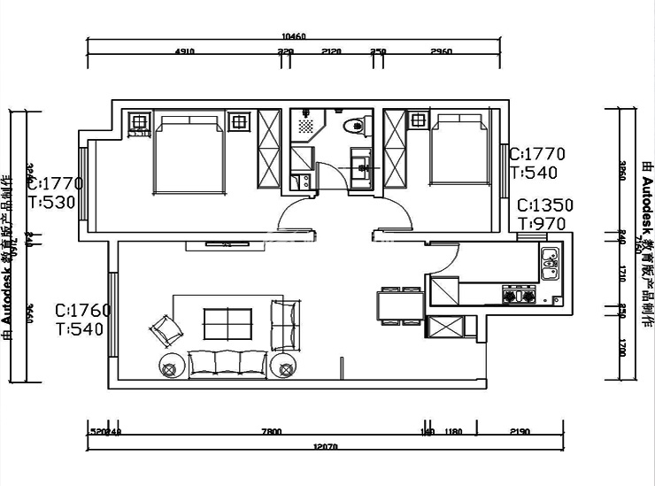
户型图
第1张
  • 案例详情

20180623134239552938.jpg 20180623134239596691.jpg 20180623134319569281.jpg

客厅标准的美式吊棚,与地面地砖及块毯相结合,使客厅更加出效果。沙发采用米白色皮料,背景色竖纹壁纸上做的挂画没有过多复杂繁琐,与简单的吊棚使整个空间贯穿一起,利用灯带,筒灯的照明来让整个空间更加温馨。

20180623134312649618.jpg

深色厨房木门与餐桌搭在一起使这个空间更具色彩,与过廊相同的吊棚使客餐厅更加相称。

20180623134338745034.jpg 20180623134338353399.jpg

深色厨房木门与餐桌搭在一起使这个空间更具色彩,与过廊相同的吊棚使客餐厅更加相称。 卧室做的美式吊棚,与墙面竖纹壁纸结合,使整个空间通透,实用性又强。次卧室采用简单石膏线,与竖纹壁纸,整个空间简单不复杂,,储物空间更大实用性更强。

20180623134419851959.jpg 20180623134432843417.jpg

封闭式厨房,空间感特别强,墙地砖以黄色系为主,与地砖相结合。让厨房看起来更加有质感。

20180623134452283306.jpg 20180623134502644400.jpg

案例设计师

林凤装饰设计师

设计师:林凤装饰设计师

从业时间:10年

设计理念:合理划分空间,让设计融入生活,营造自然、品味、格调。

预约设计师

算算你家装修多少钱

报名即享丰厚赠品,享半价装修

免费报价
咨询热线:400-656-9909
20190221103704574636.jpg

精品设计案例

20180612134930523248.jpg 服务号二维码.jpg