立即预约 立即预约
免费定制整装家居

免费定制整装家居

一站置家 全程无忧 一省到底
hide.png

当前位置: 首页 > 装修案例效果图 > 外滩三号

外滩三号 126平 现代简约风格效果图

收藏
案例风格 现代简约 案例户型 三居 案例面积 126平米
楼盘名称 外滩三号 设计师 林凤装饰 案例类型 改善性住宅

设计理念:本案例整体以暖色系为主,打造温馨舒适的家。

客厅
第1张
第2张
第3张
第4张
第5张
餐厅
第1张
卧室
第1张
第2张
第3张
第4张
卫生间
第1张
过廊
第1张
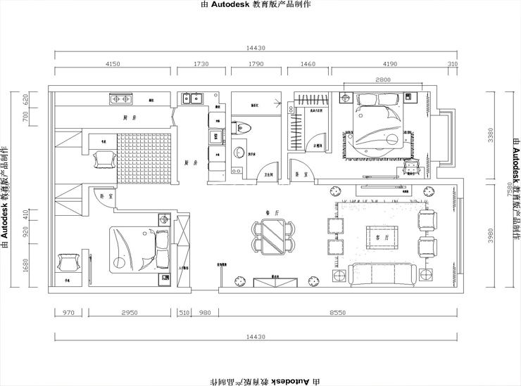
户型图
第1张
  • 案例详情

20180623142503503720.jpg 20180623142503704577.jpg 20180623142503947348.jpg 20180623142503956027.jpg 20180623142504264657.jpg

暖色壁纸背景墙,搭配实木色系地板,跳跃色相结合,与灰色及蓝绿色沙发搭配更加协调温馨。

20180623142522801531.jpg

餐厅采用与客厅相同吊棚,与客厅相结合,灰色餐桌不显繁琐。

20180623142539788128.jpg 20180623142540639401.jpg 20180623142540823065.jpg 20180623142541762640.jpg

卧室采用简单石膏线,不抢眼,屋里没有特别显眼的颜色,真个更加注重实用性。

20180623142555642587.jpg

卫生间采用浅色墙砖与深色墙地砖结合,整个空间都呈现暖色,空间更加通透明亮。

20180623142633471530.jpg 20180623142644936141.jpg

案例设计师

林凤装饰

设计师:林凤装饰

从业时间:15年

设计理念:用心感受生活,用设计完善空间,让设计与生活空间完美结合。

预约设计师

算算你家装修多少钱

报名即享丰厚赠品,享半价装修

免费报价
咨询热线:400-656-9909
20190221103704574636.jpg

精品设计案例

20180612134930523248.jpg 服务号二维码.jpg