立即预约 立即预约
免费定制整装家居

免费定制整装家居

一站置家 全程无忧 一省到底
hide.png

当前位置: 首页 > 装修案例效果图 > 御景新世界

御景新世界 104平 北欧风格效果图

收藏
案例风格 北欧 案例户型 二居 案例面积 104平米
楼盘名称 御景新世界 设计师 林凤装饰精英设计师 案例类型 改善性住宅

设计理念:业主此套住房是投资出租、主要考虑装修的整体性价比和装饰效果的整体性、希望通过花少量的钱能得到相对好的装修效果。

  • 案例详情

付明-御景新世界104平-北欧-客厅 (1).jpg 付明-御景新世界104平-北欧-客厅 (3).jpg 付明-御景新世界104平-北欧-客厅 (2).jpg 付明-御景新世界104平-北欧-客厅 (5).jpg 付明-御景新世界104平-北欧-客厅 (4).jpg 付明-御景新世界104平-北欧-客厅 (6).jpg 付明-御景新世界104平-北欧-客厅 (7).jpg

客厅的三人位沙发和电视墙的比例不是很协调,通过电视柜和落地灯的结合、再配合墙面的挂件修饰,让视觉上得以对称,又增添的电视背景墙的观赏性和实用性,简约的素色壁纸迎合着沙发的颜色,艳丽的挂画和地毯使得整个空间增添了几分活力,深色的窗帘让客厅空间又不失稳重。

付明-御景新世界104平-北欧-主卧 (1).jpg 主卧 (2).jpg

两个卧室的床头都用了不同的材料做了床头墙的修饰、结合壁灯和悬垂灯从造型上更具有观赏性的同时、夜晚的照明也显得尤为使用。

付明-御景新世界104平-北欧-卫生间 (1).jpg 卫付明-御景新世界104平-北欧-生间 (2).jpg

户型原来的两个卫生间在本案中规划出了一个相对较小的卫生间作为储物间、解决了大部分租户有太多物品需要存放的需求点。将主卧的墙体拆除、将位置更方便的主卫改造成共用卫生间,同时也增加了卧室门口的采光和空间感。

付明-御景新世界104平-北欧-厨房 (3).jpg 付明-御景新世界104平-北欧-厨房 (1).jpg 付明-御景新世界104平-北欧-厨房 (2).jpg

厨房的空间较大,考虑到控制成品的原因厨房采用一字橱柜、满足洗菜、切菜、炒菜、电器区的功能前提下就不在多增设橱柜、剩余空间可以通过后期增设多功能储物架来升级厨房的功能性。

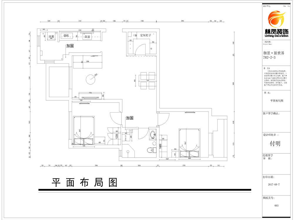
付明-御景新世界104平-北欧-平面图.jpg

案例设计师

林凤装饰精英设计师

设计师:林凤装饰精英设计师

从业时间:9年

设计理念:艺术充满生活 设计无处不在

预约设计师

算算你家装修多少钱

报名即享丰厚赠品,享半价装修

免费报价
咨询热线:400-656-9909
20190221103704574636.jpg

精品设计案例

20180612134930523248.jpg 服务号二维码.jpg