立即预约 立即预约
免费定制整装家居

免费定制整装家居

一站置家 全程无忧 一省到底
hide.png

当前位置: 首页 > 装修案例效果图 > 凯荣禧乐都

凯荣禧乐都 86平 现代简约风格效果图

收藏
案例风格 现代简约 案例户型 二居 案例面积 86平米
楼盘名称 凯荣禧乐都 设计师 林凤装饰设计师 案例类型 婚房

设计理念:本次空间为现代设计。现代风格一般用在描述建筑和室内作品及设计作品。无论房间多大,一定要西安的宽敞。不需要繁琐装潢和过多的家具,在装饰与布置中最大限度的体现空间与家具的整体协调。造型方面多采用几何结构,这就是现代注意时尚风格。

客厅
第1张
第2张
第3张
第4张
第5张
餐厅
第1张
卫生间
第1张
厨房
第1张
儿童房
第1张
门厅
第1张
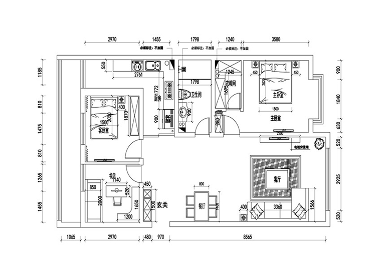
户型图
第1张
  • 案例详情

尤纯博-凯荣禧乐都-86㎡-现代-客厅4.jpg 尤纯博-凯荣禧乐都-86㎡-现代-电视背景墙.jpg 尤纯博-凯荣禧乐都-86㎡-现代-客厅.jpg 尤纯博-凯荣禧乐都-86㎡-现代-客厅2.jpg 尤纯博-凯荣禧乐都-86㎡-现代-客厅3.jpg

2.整个客厅背景以白色为主,显示了主人干净洒脱的性格,地砖让整个客厅有明亮起来的效果。印花的沙发和整个客厅的墙壁颜色搭配起来,给人眼前一亮的感觉。电视机下设计了一个实用又不碍位置,和电视机搭配很好的储物柜,简单、大气。 以灰色调为主的客厅虽然看起来很不张扬,但整个却可以让人感觉到主人的那种低调随意的个性。低调中又不失优雅,客厅虽不大却没不会带给人拥挤的感觉。虽然色彩不鲜明但却很温馨,和餐厅过渡的蛮好的。

尤纯博-凯荣禧乐都-86㎡-现代-餐厅.jpg

3.餐厅吊灯位置与餐桌的中心对齐,在餐厅的背景墙为挂画造型设计,虽然是简单的挂画但并不会显得餐厅设计缺失和整体客厅不协调,质感与美感结合,颜色又与整体色彩相搭配。

尤纯博-凯荣禧乐都-86㎡-现代-卫生间.jpg

卫生间以浅色为主,看整个空间看起来干净、明亮。卫生间洗手台、花洒位置设计合理,极大的满足了业主对空间的需求,也能与主体更好的结合,洗手台下设计了储物柜,更加节省了卫生间的空间。

尤纯博-凯荣禧乐都-86㎡-现代-厨房.jpg

厨房的储物柜设计在下方,增加了储物并不占用空间,让厨房有一种大气的感觉。颜色偏暖,是整个厨房看起来明亮简洁。

尤纯博-凯荣禧乐都-86㎡-现代-儿童房.jpg

小卧室采用了简单的颜色,空间感设计极强,让孩子可以更好的在房间活动。书桌的设计是必不可少的,但并不使空间拥挤。

尤纯博-凯荣禧乐都-86㎡-现代-玄关.jpg 尤纯博-凯荣禧乐都-86㎡-现代-平面.jpg

案例设计师

林凤装饰设计师

设计师:林凤装饰设计师

从业时间:8年

设计理念:让传统生活在现代,让创新走进生活

预约设计师

算算你家装修多少钱

报名即享丰厚赠品,享半价装修

免费报价
咨询热线:400-656-9909
20190221103704574636.jpg

精品设计案例

20180612134930523248.jpg 服务号二维码.jpg