立即预约 立即预约
免费定制整装家居

免费定制整装家居

一站置家 全程无忧 一省到底
hide.png

当前位置: 首页 > 装修案例效果图 > 浦江苑御江湾

浦江苑御江湾 73平 现代简约风格效果图

收藏
案例风格 现代简约 案例户型 二居 案例面积 73平米
楼盘名称 浦江苑御江湾 设计师 林凤装饰设计师 案例类型 婚房

设计理念:本案为现代风格。户型规整,区域划分明显。拆改方案并没有做太多,本身南北通透的户型,户型有规整,厨房做拉门,使用,美观。

客厅
第1张
第2张
第3张
第4张
第5张
餐厅
第1张
卧室
第1张
厨房
第1张
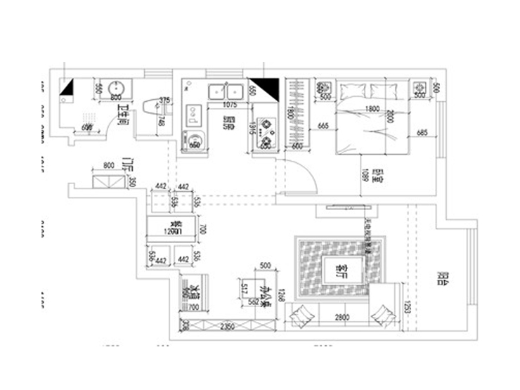
户型图
第1张
  • 案例详情

尤纯博-浦江御景湾-简约风格-73㎡-客厅.jpg 尤纯博-浦江御景湾-简约风格-73㎡-客厅过廊.jpg 尤纯博-浦江御景湾-简约风格-73㎡-客厅餐厅.jpg 尤纯博-浦江御景湾-简约风格-73㎡-客厅电视背景墙.jpg 尤纯博-浦江御景湾-简约风格-73㎡-沙发.jpg

客厅与过廊,餐厅,门厅区域划分明显,客厅没有复杂的吊棚 ,只是简单的石膏线。突出简约风格,让业主感觉更为轻松舒适。

尤纯博-浦江御景湾-简约风格-73㎡-餐厅.jpg

餐厅独立的空间,占地的面积很宽裕。为了使餐厅背景墙不那么单调,墙上可以挂上一些生活照,添加了温馨的氛围。

尤纯博-浦江御景湾-简约风格-73㎡-主卧室.jpg

简约的设计风格给卧室带来轻松、温馨的家居气氛,就一定要整体搭配。浅色地板米色地毯,通透的大窗户,素色的墙都是极好的搭配。也许单看时,确实太简单了,但安上一个简而不俗的床头灯,点缀些花草,一个简单的衣柜,地上扔几本精美杂志,那自然清新、舒适休闲的空气就充斥了整个卧室,让人无比留恋。

尤纯博-浦江御景湾-简约风格-73㎡-厨房.jpg

厨房墙砖颜色为黄色抛釉砖,时尚简约大气。

尤纯博-浦江御景湾-简约风格-73㎡-平面图.jpg

案例设计师

林凤装饰设计师

设计师:林凤装饰设计师

从业时间:8年

设计理念:让传统生活在现代,让创新走进生活

预约设计师

算算你家装修多少钱

报名即享丰厚赠品,享半价装修

免费报价
咨询热线:400-656-9909
20190221103704574636.jpg

精品设计案例

20180612134930523248.jpg 服务号二维码.jpg