立即预约 立即预约
免费定制整装家居

免费定制整装家居

一站置家 全程无忧 一省到底
hide.png

当前位置: 首页 > 装修案例效果图 > 其士盛和祥

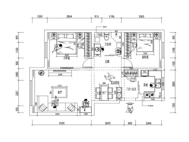
其士盛和祥 90平 现代简约风格效果图

收藏
案例风格 现代简约 案例户型 二居 案例面积 90平米
楼盘名称 其士盛和祥 设计师 丁强 案例类型 改善性住宅

设计理念:本案以现代简约的风格来设计。以极小跳跃性的色彩为整体主色调,居家效果,简洁,大方,实用,是业主在繁杂的工作中放松心情,回到温馨的港湾。

  • 案例详情

开建康都-135平-现代风格-背景墙.jpg 开建康都-135平-现代风格-沙发1.jpg 开建康都-135平-现代风格-沙发2.jpg 其士盛和祥-90平-现代风格-客厅.jpg 其士盛和祥-90平-现代风格-客厅1.jpg 其士盛和祥-90平-现代风格-客厅2.jpg 其士盛和祥-90平-现代风格-客厅3.jpg

整个空间餐厅客厅划分分明,业主本想舍得出一个小卧室成餐厅,设计师并不建议,所以还是按原有位置放置餐桌。整体空间简单明了,方正的空间为了使效果开阔,没有过多的造型划分区域。整体采用线条石膏线的棚面贯穿整个空间。墙面采用个性化硅藻泥为整体空间抹了一个重点区域,通体配合柔和的灯光使空间充满温馨舒适的视觉效果,简洁的家具又能给人带来回归自然的感觉。

开建康都-135平-现代风格-餐厅.jpg 开建康都-135平-现代风格-餐厅1.jpg 其士盛和祥-90平-现代风格-餐厅.jpg 开建康都-135平-现代风格-卧室.jpg 其士盛和祥-90平-现代风格-卧室.jpg

卧室空间较大,但一部分空间不能得到充分利用。所以我是多用深色木质感为其增加一些厚重的视觉效果。棚面以简洁的石膏线为主,床头花朵图案的装饰画作为亮点,与其他墙面衔接有致,作为呼应,有主有次,尽显温馨,舒适。

开建康都-135平-现代风格-卫生间.jpg 其士盛和祥-90平-现代风格-卫生间.jpg

卫生间主要以暖色色调来体现。地面同样采用了米黄色地砖铺贴来凸显空间感,同时又增加一些灵动。

开建康都-135平-现代风格-厨房.jpg 其士盛和祥-90平-现代风格-厨房.jpg 其士盛和祥-90平-现代风格-门厅.jpg 其仕盛和祥-90平-现代风格-卧室.jpg

案例设计师

丁强

设计师:丁强

从业时间:8年

设计理念:用心观察生活,感悟人生真谛,让设计与生活互动

预约设计师

算算你家装修多少钱

报名即享丰厚赠品,享半价装修

免费报价
咨询热线:400-656-9909
20190221103704574636.jpg

精品设计案例

20180612134930523248.jpg 服务号二维码.jpg