立即预约 立即预约
免费定制整装家居

免费定制整装家居

一站置家 全程无忧 一省到底
hide.png

当前位置: 首页 > 装修案例效果图 > 格林生活坊

格林生活坊 99平 北欧风格效果图

收藏
案例风格 北欧 案例户型 二居 案例面积 99平米
楼盘名称 格林生活坊 设计师 林凤装饰设计师 案例类型 婚房

设计理念:本案的风格为北欧风格,北欧风格的简洁体现在整体色调的统一以及对直线条的运用。北欧风格的设计多以黑白色为主,虽然简单,但却带有强烈的设计感。而且从家具到墙面装饰,简洁利落的直线条随处可见,充满了现代气息。

客厅
第1张
第2张
第3张
餐厅
第1张
卧室
第1张
卫生间
第1张
厨房
第1张
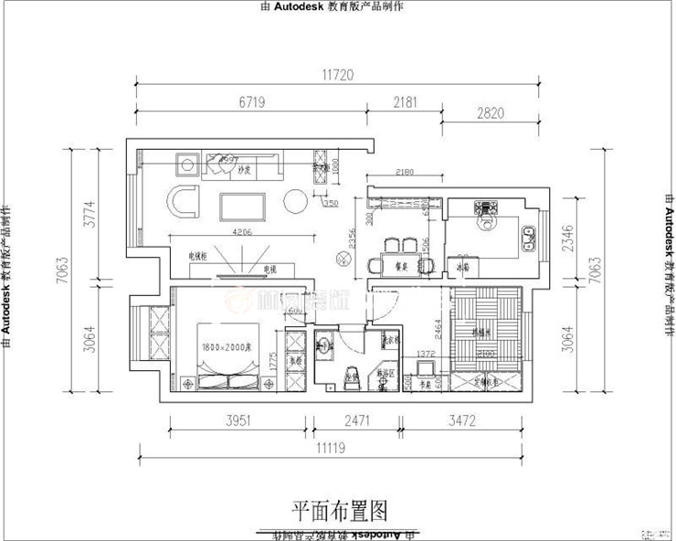
户型图
第1张
  • 案例详情

格林生活坊-99平-北欧风格-客厅.jpg 格林生活坊-99平-北欧风格-客厅1.jpg 格林生活坊-99平-北欧风格-玄关.jpg

客厅墙面颜色选择了色彩明快的布艺沙发,配合着彩色地毯让空间整体显得活泼大方,背景墙用了地板上墙,整体活泼明快。

格林生活坊-99平-北欧风格-餐厅.jpg

餐厅选择原木色和白色结合搭配,简单明快,有了一丝活力。

格林生活坊-99平-北欧风格-主卧.jpg

卧室温馨简洁,充足的储物衣柜,灵动的飘窗。

格林生活坊-99平-北欧风格-卫生间.jpg

卫生间整体以干净简洁为主,花片来提高整体精美效果。

格林生活坊-99平-北欧风格-厨房.jpg 平面布置图.jpg

案例设计师

林凤装饰设计师

设计师:林凤装饰设计师

从业时间:9年

设计理念:用最简单的线条表达出最美的效果。

预约设计师

算算你家装修多少钱

报名即享丰厚赠品,品质装修

免费报价
咨询热线:400-656-9909
20190221103704574636.jpg

精品设计案例

20180612134930523248.jpg 服务号二维码.jpg