立即预约 立即预约
免费定制整装家居

免费定制整装家居

一站置家 全程无忧 一省到底
hide.png

当前位置: 首页 > 装修案例效果图 > 中海康城

中海康城 95平 美式风格效果图

收藏
案例风格 美式 案例户型 二居 案例面积 95平米
楼盘名称 中海康城 设计师 林凤设计师 案例类型 婚房

设计理念:本案以港式风格为主,风格强调建筑及室内装潢应该既具有历史的延续性又不拘泥于传统的思维方式,讲究人情味并使用非传统的色彩,以期创造一种溶感性与理性、集传统与现代、揉大众与行家于一体的"亦此亦彼"的建筑形象。将古典与现代,传统与时尚的元素兼容并蓄,既对立又统一。设计手法因此也可以达到多元化,灵活多变,利用多种不同的材质组合空间,光亮的,暗淡的,华丽的,古朴的,平滑的,粗糙的相互穿插对比,形成有力量但不用生硬,有活力但不稚嫩的风格。

客厅
第1张
第2张
第3张
第4张
第5张
餐厅
第1张
卧室
第1张
卫生间
第1张
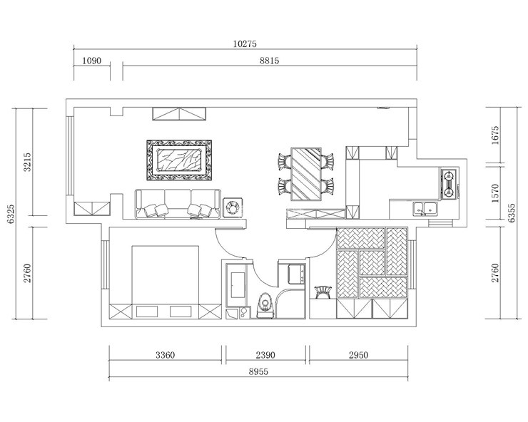
户型图
第1张
  • 案例详情

中海康城-98㎡-港式风格-客厅.jpg 中海康城-98㎡-港式风格-客厅2.jpg 中海康城-98㎡-港式风格-客厅3.jpg 中海康城-98㎡-港式风格-客厅4.jpg 中海康城-98㎡-港式风格-客厅5.jpg

客厅通常会用一些有材质来营造空间的感觉,在设计中材质一般会更好的创造出更浓郁,更地道的自然感觉,首先不仅材料上,在视觉上也要,所以在墙面上采用咖啡色的壁纸来作为主色调,这样和棚顶的石膏线相呼应非常完美。

中海康-98㎡-港式风格-餐厅2.jpg

在餐桌的墙面上摆放一些装饰画,以达到增加餐厅的情调。而餐桌上的绿色植物,则起到了画龙点睛的作用,使环境充满生机与活力,

中海康城-98㎡-港式风格-卧室.jpg

主卧室是睡眠、休息、最具私隐性的空间。卧室主要以简洁大方为主,无论什么样的花纹壁纸,都可以保持这原有的清新内敛

中海康城-98㎡-港式风格-卫生间.jpg 中海康城-98㎡-港式风格-平面.jpg

案例设计师

林凤设计师

设计师:林凤设计师

从业时间:7年

设计理念:人为生活而设计,设计为生活而存在。

预约设计师

算算你家装修多少钱

报名即享丰厚赠品,享半价装修

免费报价
咨询热线:400-656-9909
20190221103704574636.jpg

精品设计案例

20180612134930523248.jpg 服务号二维码.jpg