立即预约
免费定制整装家居
一站置家 全程无忧 一省到底
设计理念:本案以美式新古典风格为主,其实是经过改良的古典主义风格。欧洲文化丰富的艺术底蕴,开放、创新的设计思想及其尊贵的姿容,一直以来颇受众人喜爱与追求。风格从简单到繁杂、从整体到局部,精雕细琢,镶花刻金都给人一丝不苟的印象。一方面保留了材质、色彩的大致风格,仍然可以很强烈地感受传统的历史痕迹与浑厚的文化底蕴,同时又摒弃了过于复杂的肌理和装饰,简化了线条。
案例详情
客厅通常会用一些有材质来营造空间的感觉,在设计中材质一般会更好的创造出更浓郁,更地道的自然感觉,首先不仅材料上,在视觉上也要,所以在墙面上采用咖啡色的壁纸来作为主色调,这样和棚顶的石膏线相呼应非常完美。
在餐桌的墙面上摆放一些装饰画,以达到增加餐厅的情调。而餐桌上的绿色植物,则起到了画龙点睛的作用,使环境充满生机与活力,
主卧室是睡眠、休息、最具私隐性的空间。卧室主要以简洁大方为主,无论什么样的花纹壁纸,都可以保持这原有的清新内敛
精品设计案例
设计说明:
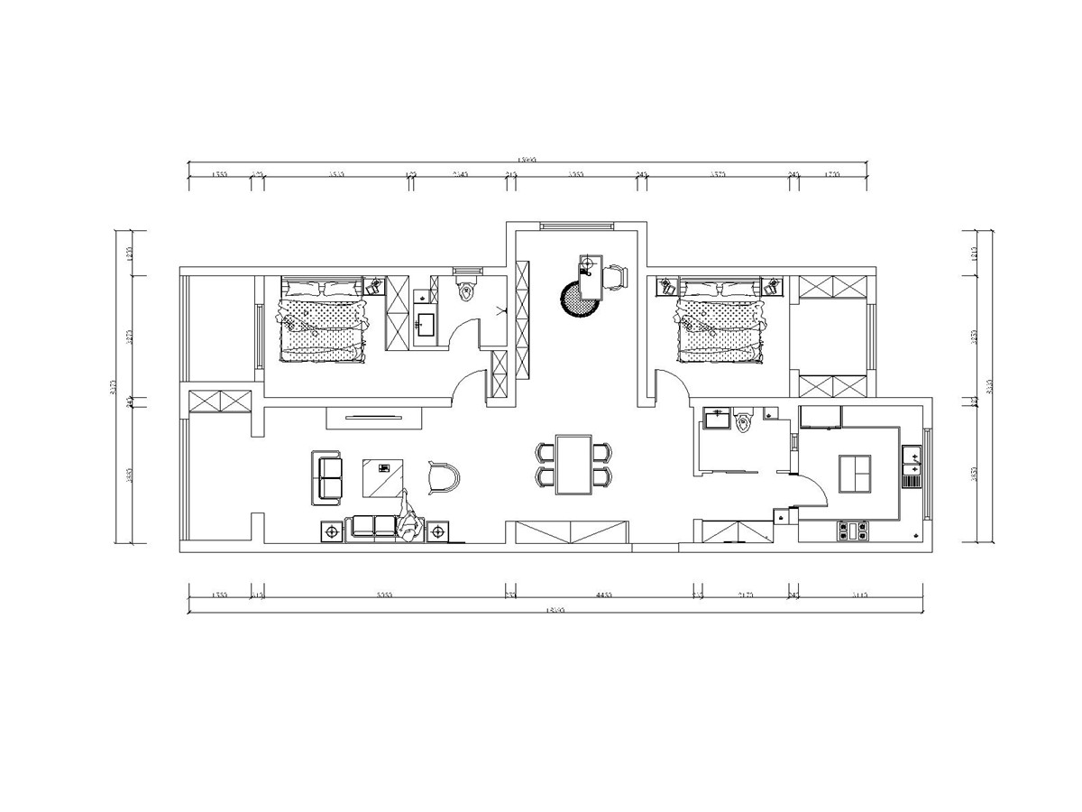
三室两厅一厨两卫,高层整体采用美式风格,色调以深色为主,体现美式的居家感和温馨感。
设计说明:
本案业主为年轻时尚小两口,所以我们考虑到未来想要给未来宝宝一个温馨舒适的一个房间,所以本案整体采用现代风格的手法,运用颜色,来打造整体空间的设计感及时尚感
设计说明:
本案以北欧风格为主题的设计,北欧风格能以现代、简洁、自然的特点俘获人心,所营造出来的生活氛围会让人倍感舒适与自在。
设计说明:
客户是一名成功人士,对于家的执念就是简单干净,客户衣服比较多,所以把每个空间都做了大衣柜,并且融入到设计里