立即预约 立即预约
免费定制整装家居

免费定制整装家居

一站置家 全程无忧 一省到底
hide.png

当前位置: 首页 > 装修案例效果图 > 半岛公馆

半岛公馆 200平 美式风格效果图

收藏
案例风格 美式 案例户型 三居 案例面积 200平米
楼盘名称 半岛公馆 设计师 林凤设计师 案例类型 婚房

设计理念:本案以简约美式风格为主,随意的不羁生活方式,没有太多造作的修饰与约束,不经意中也成就了另外一种休闲式的浪漫,它有着欧罗巴的奢侈与贵气,但又结合了美洲大陆这块水土的不羁,这样结合的结果是剔除了许多羁绊,但又能找寻文化根基的新的怀旧、贵气加大气而又不失自在与随意的风格

客厅
第1张
第2张
第3张
第4张
餐厅
第1张
卧室
第1张
卫生间
第1张
厨房
第1张
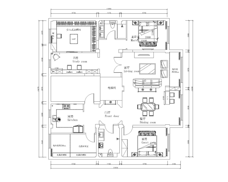
户型图
第1张
  • 案例详情

半岛公馆-200㎡-简约美式-餐厅4.jpg 半岛公馆-200㎡-简约美式-餐厅3.jpg 半岛公馆-200㎡-简约美式-客厅.jpg 半岛公馆-200㎡-简约美式-客厅2.jpg

客厅通常会用一些有材质来营造空间的感觉,在设计中材质一般会更好的创造出更浓郁,更地道的自然感觉,首先不仅材料上,在视觉上也要,所以在墙面上采用淡绿色的壁纸来作为主色调,这样和棚顶的石膏线相呼应非常完美。

半岛公馆-200㎡-简约美式-餐厅.jpg

在餐桌的墙面上摆放一些装饰画,以达到增加餐厅的情调。而餐桌上的绿色植物,则起到了画龙点睛的作用,使环境充满生机与活力,

半岛公馆-200㎡-简约美式-卧室.jpg

主卧室是睡眠、休息、最具私隐性的空间。卧室主要以简洁大方为主,无论什么样的花纹壁纸,都可以保持这原有的清新内敛

半岛公馆-200㎡-简约美式-卫生间.jpg 半岛公馆-200㎡-简约美式-厨房.jpg 半岛公馆-200㎡-简约美式-平面.jpg

案例设计师

林凤设计师

设计师:林凤设计师

从业时间:7年

设计理念:人为生活而设计,设计为生活而存在。

预约设计师

算算你家装修多少钱

报名即享丰厚赠品,享半价装修

免费报价
咨询热线:400-656-9909
20190221103704574636.jpg

精品设计案例

20180612134930523248.jpg 服务号二维码.jpg