立即预约 立即预约
免费定制整装家居

免费定制整装家居

一站置家 全程无忧 一省到底
hide.png

当前位置: 首页 > 装修案例效果图 > 清华园

清华园 700平 美式风格效果图

收藏
案例风格 美式 案例户型 别墅 案例面积 700平米
楼盘名称 清华园 设计师 林凤装饰设计师 案例类型 婚房

设计理念:本案为简美风格。简美设计风格主要以简约和美式为一体!!!主要赋予一种简约大气又高贵的气息,没有反复的空间布局,每处都格外的干净利落,大方整洁,而且现代实用,整体设计上,和宽敞的空间布局都会给人耳目一新,温暖舒适的感觉。

客厅
第1张
第2张
餐厅
第1张
卫生间
第1张
厨房
第1张
儿童房
第1张
第2张
休闲区
第1张
门厅
第1张
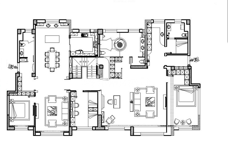
户型图
第1张
  • 案例详情

清华园-700㎡-简美风格-首图.jpg 清华园-700㎡-简美风格-大客厅.jpg

2.客厅作为待客区域,一般要身心舒适,考虑到客户本身不喜欢复杂的吊顶,也为体现简美的特点,所以选用的简单的石膏线作为吊顶装饰,对沙发背景墙的设计采用了符合简美风格的挂画,也结合了家具选用的彩色布艺沙发作为呼应,也创造了自然简朴的视觉效果,充满美式元素的客厅让空间显得更加华丽,温馨。

清华园-700㎡-简美风格-餐厅.jpg

大气的餐厅,在不影响整体采光及通风的情况下设计师将餐厅设计成敞开式,舒适感增强。

清华园-700㎡-简美风格-主卫生间.jpg

卫生间以浅色为主,让整个空间看起来干净、明亮。卫生间洗手台、花洒位置设计合理,浴区的设计极大的满足了业主对空间的需求,也能与主体更好的结合,洗手台下设计了储物柜,更加节省了卫生间的空间

清华园-700㎡-简美风格-厨房.jpg

厨房设计主要以白色实木为材质,橱柜柜体的线形突出美式风格特点,整体色调很明亮大气。

清华园-700㎡-简美风格-儿童房2.jpg 清华园-700㎡-简美风格-儿童房1.jpg 清华园-700㎡-简美风格-台球厅.jpg 清华园-700㎡-简美风格-西玄关.jpg 清华园-700㎡-简美风格-户型图.jpg

案例设计师

林凤装饰设计师

设计师:林凤装饰设计师

从业时间:10年

设计理念:搭建人与空间对话、物质与精神完美完美结合,设计源于生活,源于内心。

预约设计师

算算你家装修多少钱

报名即享丰厚赠品,享半价装修

免费报价
咨询热线:400-656-9909
20190221103704574636.jpg

精品设计案例

20180612134930523248.jpg 服务号二维码.jpg