立即预约 立即预约
免费定制整装家居

免费定制整装家居

一站置家 全程无忧 一省到底
hide.png

当前位置: 首页 > 装修案例效果图 > 爵仕意境

爵仕意境 140平 现代简约风格效果图

收藏
案例风格 现代简约 案例户型 四居 案例面积 140平米
楼盘名称 爵仕意境 设计师 林凤装饰精英设计师 案例类型 改善性住宅

设计理念:发挥现代风格简单、大气的特点,通过光线的明暗变化凸显空间的层次感,更凸显出家的温馨和谐。

客厅
第1张
第2张
第3张
第4张
第5张
餐厅
第1张
第2张
卧室
第1张
过廊
第1张
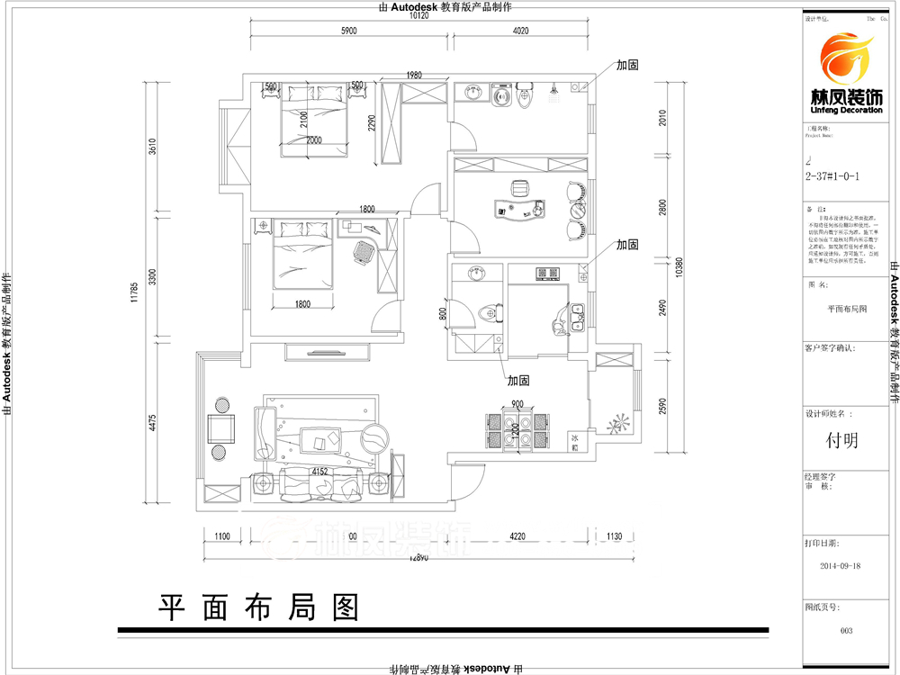
户型图
第1张
  • 案例详情

付明-爵仕意境-140平-现代-客厅 (1).jpg 付明-爵仕意境-140平-现代-客厅 (2).jpg 付明-爵仕意境-140平-现代-客厅 (3).jpg 付明-爵仕意境-140平-现代-客厅 (4).jpg 付明-爵仕意境-140平-现代-客厅 (5).jpg

客厅的整体墙面用素色壁纸铺贴,增强整个空间的暖色调氛围,墙面的挂画大胆运用靓丽的点缀色把整个空间调和不那么低沉,增强整个空间的动感和时尚的气息,简约的八头吊灯彰显了真个空间的大气。

付明-爵仕意境-140平-现代-餐厅2.jpg 付明-爵仕意境-140平-现代-餐厅.jpg

餐厅的吊灯沿用客厅的吊灯款式,并没有沿用客厅的顶面造型,使得餐厅的整个空间更加高挑明亮、解决了北侧采光不足给空间带来狭窄的视觉感,餐边柜的设置刚好和厨房的拉门形成了整个墙面的平衡感,墙壁的挂画色彩刚好和客厅有了联系。

付明-爵仕意境-140平-现代-卧室.jpg 付明-爵仕意境-140平-现代-过廊.jpg

玄关的鞋柜加雕花隔断将客厅和玄关空间自然的隔离,顶面圆形的造型棚点缀一盏圆形吊灯增加了几分和谐氛围。

付明-爵仕意境-140平-现代-平面图.jpg

案例设计师

林凤装饰精英设计师

设计师:林凤装饰精英设计师

从业时间:9年

设计理念:艺术充满生活 设计无处不在

预约设计师

算算你家装修多少钱

报名即享丰厚赠品,品质装修

免费报价
咨询热线:400-656-9909
20190221103704574636.jpg

精品设计案例

20180612134930523248.jpg 服务号二维码.jpg