立即预约 立即预约
免费定制整装家居

免费定制整装家居

一站置家 全程无忧 一省到底
hide.png

当前位置: 首页 > 装修案例效果图 > 铁建梧桐苑

铁建梧桐苑 180平 欧式风格效果图

收藏
案例风格 欧式 案例户型 四居 案例面积 180平米
楼盘名称 铁建梧桐苑 设计师 林凤设计师 案例类型 婚房

设计理念:通过完美的典线,精益求精的细节处理,带给家不尽的舒适触感,实际上和谐是欧式的至上境界!

客厅
第1张
第2张
第3张
第4张
餐厅
第1张
卧室
第1张
卫生间
第1张
厨房
第1张
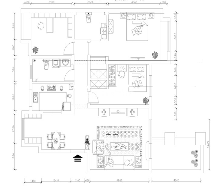
户型图
第1张
  • 案例详情

铁建梧桐-180㎡-欧式-客厅1.jpg 铁建梧桐-180㎡-欧式-客厅2.jpg 铁建梧桐-180㎡-欧式-过廊.jpg 铁建梧桐-180㎡-欧式-客厅4.jpg

这套设计方案上整体来选用白色石材来提升整个空间的档次,通透沙发背景墙和电视背景墙更通透一些!沙发背景一幅常常的笔画衬托整个空间更加沉稳一些,两盆高高绿植增加空间一些更浓的自然气息!

铁建梧桐-180㎡-欧式-餐厅.jpg

花纹的镜子餐厅背景墙让整个餐厅更见大气,同时也在无形中扩大了餐厅的空间!漂亮的餐桌上悬挂的欧式水晶吊灯,让全家人一起吃饭的气息更浓一些!

铁建梧桐-180㎡-欧式-卧室.jpg

卧室以白色这种淡然明亮的色调出现,它的整个面积并不大,由于卧室的核心设计是床与衣柜,所以除了摆设这简约的双人床和卧室必备的衣柜、壁灯以外,没有再过多的放置其它物品。

铁建梧桐-180㎡-欧式-卫生间.jpg

墙面采用暖黄的地砖,用不同的瓷砖做出一些层次感,整个空间考虑干净整洁,空间宽敞!

铁建梧桐-180㎡-欧式-厨房.jpg

厨房主要以仿古墙砖在搭配实木门板,颇显出自然风姿,深浅搭配颜色的运用,让女主人在烹饪过程中会放松身心。

铁建梧桐-180㎡-欧式-平面图.jpg

案例设计师

林凤设计师

设计师:林凤设计师

从业时间:7年

设计理念:设计源于生活,生活映与本性

预约设计师

算算你家装修多少钱

报名即享丰厚赠品,享半价装修

免费报价
咨询热线:400-656-9909
20190221103704574636.jpg

精品设计案例

20180612134930523248.jpg 服务号二维码.jpg