立即预约 立即预约
免费定制整装家居

免费定制整装家居

一站置家 全程无忧 一省到底
hide.png

当前位置: 首页 > 装修案例效果图 > 华润中央公园

华润中央公园 45平 现代简约风格效果图

收藏
案例风格 现代简约 案例户型 一居 案例面积 45平米
楼盘名称 华润中央公园 设计师 林凤设计师 案例类型 婚房

设计理念:本案设计以现代风格为主,主要追求简洁、实用舒适;厅里暖色调的应用和房间里的灰色应用,使整体感形成鲜明对比,设计手法是一种对北欧简装的新感知和新认识、得体有度的装饰让空间感变的极为舒适。

客厅
第1张
第2张
第3张
餐厅
第1张
卧室
第1张
卫生间
第1张
户型图
第1张
  • 案例详情

华润中央公园-45㎡-现代简约风格-客厅1.jpg 华润中央公园-45㎡-现代简约风格-客厅2.jpg 华润中央公园-45㎡-现代简约风格-客厅3.jpg

客厅采用米黄色墙面呼应条纹理石砖,让整个空间更具温馨感,加上半高的装饰墙及纯白色花架的点缀让客厅整体空间颜色搭配更加舒适,清晨或者午后小憩在沙发上,会是一种不一样的享受。

华润中央公园-45㎡-现代简约风格-玄关.jpg

餐厅位于沙发的另一侧,简洁,明朗,给忙碌了一天工作的人轻松惬意的氛围,用餐时给人轻松愉悦的幸福感,用心去感受每一餐。

华润中央公园-45㎡-现代简约风格-卧室.jpg

壁纸采用浅灰色样式壁纸,使卧室充满温馨舒适的感觉,让空间对比更强烈但不失美感。且给人以舒适的享受、温馨舒适之感觉,每日清晨起床时,总有对卧室不舍之情,不舍这极致温馨且简洁的魅力。

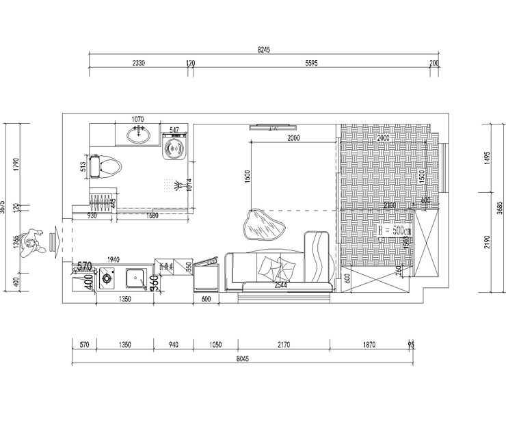
华润中央公园-45㎡-现代简约风格-卫生间.jpg 华润中央公园-45㎡-现代简约风格-平面图.jpg

案例设计师

林凤设计师

设计师:林凤设计师

从业时间:7年

设计理念:设计源于生活,生活映与本性

预约设计师

算算你家装修多少钱

报名即享丰厚赠品,品质装修

免费报价
咨询热线:400-656-9909
20190221103704574636.jpg

精品设计案例

20180612134930523248.jpg 服务号二维码.jpg