立即预约 立即预约
免费定制整装家居

免费定制整装家居

一站置家 全程无忧 一省到底
hide.png

当前位置: 首页 > 装修案例效果图 > 中旅国际小镇

中旅国际小镇 92平 现代简约风格效果图

收藏
案例风格 现代简约 案例户型 二居 案例面积 92平米
楼盘名称 中旅国际小镇 设计师 林凤装饰设计师 案例类型 婚房

设计理念:本案为现代风格的设计,整体简单、时尚、前卫感强烈。

客厅
第1张
第2张
第3张
第4张
第5张
餐厅
第1张
卧室
第1张
卫生间
第1张
厨房
第1张
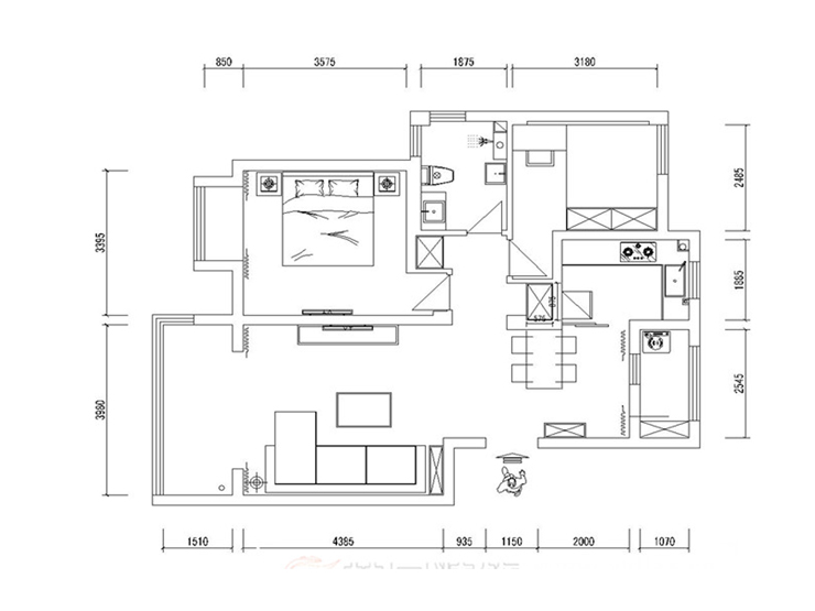
户型图
第1张
  • 案例详情

孟祥鹏-中旅国际小镇-92平米-现代风格-客厅二.jpg 孟祥鹏-中旅国际小镇-92平米-现代风格-客厅.jpg 孟祥鹏-中旅国际小镇-92平米-现代风格-客厅三.jpg 孟祥鹏-中旅国际小镇-92平米-现代风格-客厅五.jpg 孟祥鹏-中旅国际小镇-92平米-现代风格-客厅四.jpg

客厅从建筑时就已规划处来,棚面以简单的石膏板线做装饰,电视墙面采用时尚的壁纸做装饰,整体感使客厅更加增彩。

孟祥鹏-中旅国际小镇-92平米-现代风格-餐厅.jpg

借用了厨房一侧的墙面,餐桌正好依靠在那里,时尚的吊顶,漂亮的装饰隔板使餐厅更加漂亮美观。

卧室.jpg

现代时尚的板式家具,黑白的雕花壁纸,精致的床头吊顶,构建了即时尚又对比鲜明的空间,主人住的更加舒适。

孟祥鹏-中旅国际小镇-92平米-现代风格-卫生间.jpg

整个卫生间以灰色系为主,墙面用开槽砖工艺做装饰,再配上时尚的台盆柜,艺术美观感更加添彩。

孟祥鹏-中旅国际小镇-92平米-现代风格-厨房.jpg

保准的厨房空间,白色的外加金属收边的上下橱柜和米黄色的墙地砖形成了鲜明的对比,房主可以同时在这样的厨房空间里自由的展示自己的厨艺。

孟祥鹏-中旅国际小镇-92平米-现代风格-平面布.jpg

案例设计师

林凤装饰设计师

设计师:林凤装饰设计师

从业时间:10年

设计理念:用灵魂感知梦一般的空间

预约设计师

算算你家装修多少钱

报名即享丰厚赠品,品质装修

免费报价
咨询热线:400-656-9909
20190221103704574636.jpg

精品设计案例

20180612134930523248.jpg 服务号二维码.jpg