立即预约 立即预约
免费定制整装家居

免费定制整装家居

一站置家 全程无忧 一省到底
hide.png

当前位置: 首页 > 装修案例效果图 > 郡原小石城

郡原小石城 170平 新中式风格效果图

收藏
案例风格 新中式 案例户型 三居 案例面积 170平米
楼盘名称 郡原小石城 设计师 林凤设计师 案例类型 改善性住宅

设计理念:本案为新中式风格,新中式设计风格主要以简约和中式为一体,主要赋予一种简约大气又轻奢的韵味,没有反复的空间布局,每处都格外的干净利落,大方整洁,搭配原木穿插在设计中,整体色调适中,灯光烘托气氛和宽敞的空间布局都会给人耳目一新,温暖舒适的感觉。

客厅
第1张
第2张
餐厅
第1张
卧室
第1张
第2张
卫生间
第1张
厨房
第1张
书房
第1张
第2张
过廊
第1张
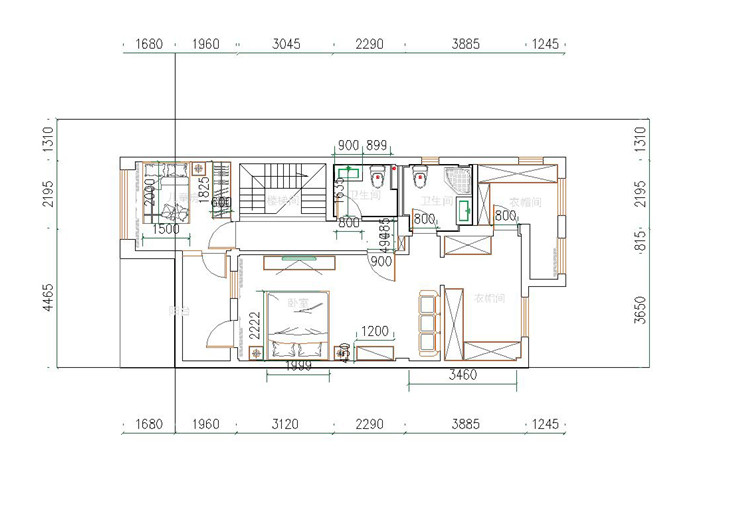
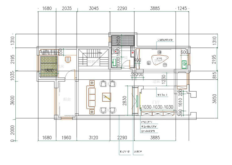
户型图
第1张
第2张
  • 案例详情

郡原小石城-170平米-新中式风格-客厅.jpg 郡原小石城-170平米-新中式风格-客厅1.jpg

客厅作为待客区域,一般要着重体现整个家风格特点,考虑到客户本身不喜欢复杂的吊顶,也为体现新中式的风格,所以吊顶没有过于复杂设计,对沙发背景墙的设计采用了实木条满铺,也结合了家具选用的木质材料作为呼应,也创造了自然简朴的视觉效果,充满新中式元素的客厅让空间显得更加宽敞,低调。

郡原小石城-170平米-新中式风格-餐厅.jpg

餐厅的设计让业主会有一种身临五星级餐厅就餐的感觉,又带有着家的温馨感,空间的布局和颜色与材质、配饰的搭配,贴合了业主喜欢自然又统一的感觉,别具一格。餐厅吊灯像顶帽子,体现了新中式的元素,也代表了男士的绅士风度和女士的优雅高贵。

郡原小石城-170平米-新中式风格-主卧室.jpg 郡原小石城-170平米-新中式风格-卧室.jpg

主卧室布置较为温馨,作为主人的私密空间主要以功能性和实用舒适为主,讲究的是整体简洁和自由,每一个细节都体现温馨和休闲,在色彩搭配上也是非常保守,以免色彩过于丰富影响休息,一般采用比较安静的素雅色。

郡原小石城-170平米-新中式风格-卫生间.jpg

卫生间的设计也主要以,轻松,休闲自在为主体,墙砖和地砖的颜色也与卧室的颜色相搭配,同时选用了一些比较新中式的配饰作为搭配,简洁大方不会繁琐。

郡原小石城-170平米-新中式风格-厨房.jpg 郡原小石城-170平米-新中式风格-书房.jpg 郡原小石城-170平米-新中式风格-书房2.jpg 郡原小石城-170平米-新中式风格-过廊.jpg 郡原小石城-170平米-新中式风格-户型图2.jpg 郡原小石城-170平米-新中式风格-户型图1.jpg

案例设计师

林凤设计师

设计师:林凤设计师

从业时间:0年

设计理念:

预约设计师

算算你家装修多少钱

报名即享丰厚赠品,享半价装修

免费报价
咨询热线:400-656-9909
20190221103704574636.jpg

精品设计案例

20180612134930523248.jpg 服务号二维码.jpg