立即预约 立即预约
免费定制整装家居

免费定制整装家居

一站置家 全程无忧 一省到底
hide.png

当前位置: 首页 > 装修案例效果图 > 中海康城

中海康城 85平 欧式风格效果图

收藏
案例风格 欧式 案例户型 三居 案例面积 85平米
楼盘名称 中海康城 设计师 林凤装饰设计师 案例类型 婚房

设计理念:本案以现代风格的设计,整体为暖色调为主,简约时尚感觉得整体空间。

客厅
第1张
第2张
第3张
第4张
餐厅
第1张
卧室
第1张
卫生间
第1张
厨房
第1张
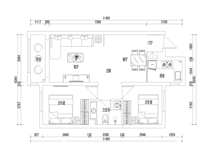
户型图
第1张
  • 案例详情

孟祥鹏-中海康城-85平米-现代风格-客厅三.jpg 孟祥鹏-中海康城-85平米-现代风格-客厅四.jpg 孟祥鹏-中海康城-85平米-现代风格-客厅一.jpg 孟祥鹏-中海康城-85平米-现代风格-客厅五.jpg

整体采用石膏线做装饰,墙面以碎花壁纸做装饰,沙发一侧以三幅壁画做装饰,整体简洁明亮。

孟祥鹏-中海康城-85平米-现代风格-门厅.jpg

独立的餐厅区,漂亮时尚的吊灯格外抢眼,由于紧挨着厨房,后期就餐非常省事。

孟祥鹏-中海康城-85平米-现代风格-卧室.jpg

时尚的现代板式家具,墙面米黄色壁纸衬托出温馨的空间感,美观时尚的挂画又让人感觉现代的休闲气息。

孟祥鹏-中海康城-85平米-现代风格-卫生间.jpg

卫生间以横向纹理的大理石瓷砖,,再配上现代定制的时尚台盆柜,更显时尚感。

孟祥鹏-中海康城-85平米-现代风格-厨房.jpg 孟祥鹏-中海康城-85平米-现代风格-户型图.jpg

案例设计师

林凤装饰设计师

设计师:林凤装饰设计师

从业时间:10年

设计理念:用灵魂感知梦一般的空间

预约设计师

算算你家装修多少钱

报名即享丰厚赠品,品质装修

免费报价
咨询热线:400-656-9909
20190221103704574636.jpg

精品设计案例

20180612134930523248.jpg 服务号二维码.jpg