立即预约 立即预约
免费定制整装家居

免费定制整装家居

一站置家 全程无忧 一省到底
hide.png

当前位置: 首页 > 装修案例效果图 > 小石城

小石城 92平 现代简约风格效果图

收藏
案例风格 现代简约 案例户型 三居 案例面积 92平米
楼盘名称 小石城 设计师 林凤装饰设计师 案例类型 婚房

设计理念:本案为现代风格的设计,整体简单、明亮、金属质感强烈。

客厅
第1张
第2张
第3张
餐厅
第1张
卧室
第1张
卫生间
第1张
厨房
第1张
户型图
第1张
  • 案例详情

孟祥鹏-小石城-92平米-现代风格-沙发背景.jpg 孟祥鹏-小石城-92平米-现代风格-电视背景.jpg 孟祥鹏-小石城-92平米-现代风格-全景.jpg

客厅和餐厅算是比较规整,客厅做了两侧吊顶把整个方正的空间做了拉伸,电视墙面采用金属玻璃石材材质做装饰,金属的质感和美观的石材使客厅更加增彩。

孟祥鹏-小石城-92平米-现代风格-门厅.jpg

餐厅被建筑梁划分十分明显,由于空间局限性,所以在左侧用了雕花隔板做装饰,拉伸空间的同时,也使餐厅更加漂亮美观。

孟祥鹏-小石城-92平米-现代风格-卧室.jpg

现代时尚的板式家具,黑白的雕花壁纸,精致的床头吊顶,构建了即时尚又对比鲜明的空间,主人住的更加舒适。

孟祥鹏-小石城-92平米-现代风格-卫生间.jpg

高级灰的质感墙砖加上机器刨槽的特殊工艺,现代感超强,亮色的光源形成鲜明的对比。

孟祥鹏-小石城-92平米-现代风格-厨房.jpg

宽敞明亮的厨房,灰色布纹、黑色烤漆玻璃外加金属收边的上下橱柜和米白的墙地砖形成了鲜明的对比,超大的空间满足两位主人可以同时在这样的厨房空间里自由的展示自己的厨艺。

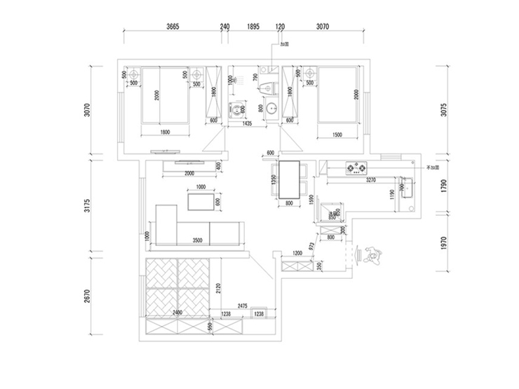
孟祥鹏-小石城-92平米-现代风格-平面布局图.jpg

案例设计师

林凤装饰设计师

设计师:林凤装饰设计师

从业时间:10年

设计理念:用灵魂感知梦一般的空间

预约设计师

算算你家装修多少钱

报名即享丰厚赠品,享半价装修

免费报价
咨询热线:400-656-9909
20190221103704574636.jpg

精品设计案例

20180612134930523248.jpg 服务号二维码.jpg