立即预约 立即预约
免费定制整装家居

免费定制整装家居

一站置家 全程无忧 一省到底
hide.png

当前位置: 首页 > 装修案例效果图 > 龙湖唐宁ONE

龙湖唐宁ONE 83平 现代简约风格效果图

收藏
案例风格 现代简约 案例户型 二居 案例面积 83平米
楼盘名称 龙湖唐宁ONE 设计师 林凤装饰设计师 案例类型 婚房

设计理念:本案为现代风格的设计,整体简单、时尚、温馨。

客厅
第1张
第2张
第3张
第4张
餐厅
第1张
卧室
第1张
卫生间
第1张
厨房
第1张
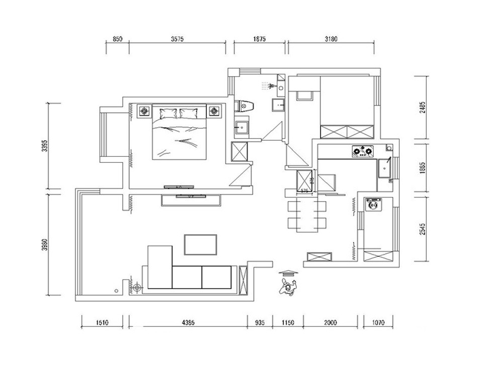
户型图
第1张
  • 案例详情

孟祥鹏-龙湖唐宁ONE-83平米-现代风格-客厅三.jpg 孟祥鹏-龙湖唐宁ONE-83平米-现代风格-餐厅.jpg 孟祥鹏-龙湖唐宁ONE-83平米-现代风格-客厅二.jpg 孟祥鹏-龙湖唐宁ONE-83平米-现代风格-客厅一.jpg

客厅比较方正,棚面以大的石膏板线做装饰,电视墙面已颜色为背景做装饰,再配上宜家的整体组合柜,整体感简洁明快。

孟祥鹏-龙湖唐宁ONE-83平米-现代风格-过廊.jpg

和客厅紧密相连,漂亮的吊顶起了分割区域的作用,墙面以艺术挂画装饰,一家人就餐更加舒心。

卧室.jpg

现代时尚的板式家具,黑白的雕花壁纸,精致的床头吊顶,构建了即时尚又对比鲜明的空间,主人住的更加舒适。

孟祥鹏-龙湖唐宁ONE-83平米-现代风格-卫生间.jpg

整个卫生间以米黄色系为主,墙面用开槽砖工艺做装饰,再配上时尚的台盆柜,艺术美观感更加添彩。

孟祥鹏-龙湖唐宁ONE-83平米-现代风格-厨房.jpg

保准的厨房空间,米色的外加金属收边的上下橱柜和米白色的墙地砖形成了鲜明的对比,房主可以同时在这样的厨房空间里自由的展示自己的厨艺。

孟祥鹏-龙湖唐宁ONE-83平米-现代风格-户型图.jpg

案例设计师

林凤装饰设计师

设计师:林凤装饰设计师

从业时间:10年

设计理念:用灵魂感知梦一般的空间

预约设计师

算算你家装修多少钱

报名即享丰厚赠品,享半价装修

免费报价
咨询热线:400-656-9909
20190221103704574636.jpg

精品设计案例

20180612134930523248.jpg 服务号二维码.jpg