立即预约 立即预约
免费定制整装家居

免费定制整装家居

一站置家 全程无忧 一省到底
hide.png

当前位置: 首页 > 装修案例效果图 > 格林木棉花

格林木棉花 100平 新中式风格效果图

收藏
案例风格 新中式 案例户型 二居 案例面积 100平米
楼盘名称 格林木棉花 设计师 林凤设计师 案例类型 改善性住宅

设计理念:本案以后新中式风格为主的设计,新中式风格不是纯粹的传统元素堆砌,而是通过对传统文化的认识,将现代元素和传统元素结合在一起,以现代人的审美需求来打造富有传统韵味的事物,让传统艺术在当今社会得到合适的体现。

客厅
第1张
第2张
餐厅
第1张
卧室
第1张
第2张
卫生间
第1张
厨房
第1张
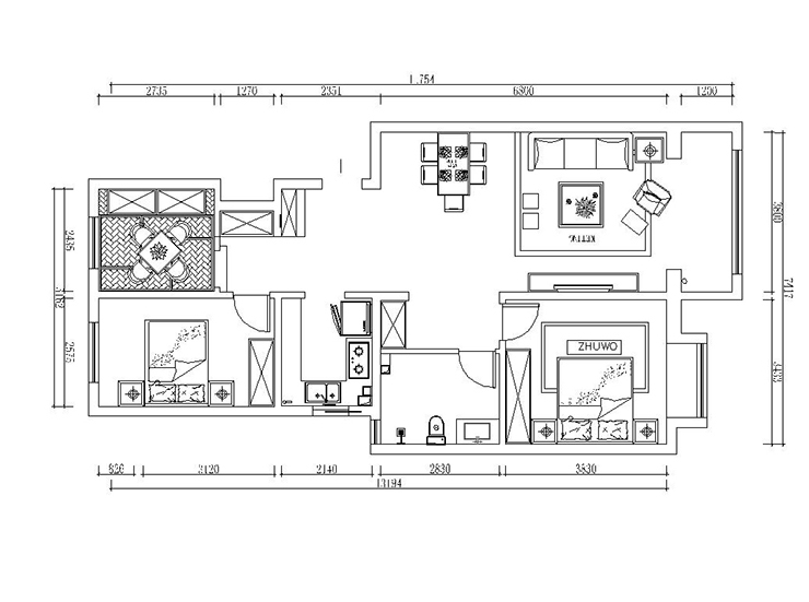
户型图
第1张
  • 案例详情

格林木棉花-100平-新中式风格-客厅.jpg 格林木棉花-100平-新中式风格-餐厅客厅1.jpg

客厅的电视背景造型墙,采用简单的中式元素,背景墙木线收口,内部理石上墙,整套新中式实木家与布艺结合,点缀装饰的软装采用陶瓷,棉麻,布艺,干枝,更具传统文化,更有情怀。

格林木棉花-100平-新中式风格-餐厅.jpg

餐厅保持与客厅整体风格的统一,新中式餐桌,就餐环境,干净,立正,提升品位,国画墙上点缀起到点睛之笔,吊顶的的线型拉缝,更硬朗。

格林木棉花-100平-新中式风格-主卧室.jpg 格林木棉花-100平-新中式风格-小卧室.jpg

卧室作为休息空间,以温馨简单为基础,在灯光上做了下文章,地面,墙面,棚顶,整体空间各个层次都装修的层次分明,卧室床头背景采用硬包,更显档次,更温馨。

格林木棉花-100平-新中式风格-卫生间.jpg

卫生间墙地砖选择米黄色系列的砖给人带来的是一种温馨,浴屏的独特设计分开了空间的干湿分离,砌筑的洗簌柜体现出了客户的高大上。

格林木棉花-100平-新中式风格-厨房.jpg

厨房主要以仿古墙砖在搭配实木门板,颇显出自然风姿,深浅搭配颜色的运用,让女主人在烹饪过程中会放松身心。

格林木棉花-100平-新中式风格.jpg

案例设计师

林凤设计师

设计师:林凤设计师

从业时间:0年

设计理念:

预约设计师

算算你家装修多少钱

报名即享丰厚赠品,享半价装修

免费报价
咨询热线:400-656-9909
20190221103704574636.jpg

精品设计案例

20180612134930523248.jpg 服务号二维码.jpg