立即预约 立即预约
免费定制整装家居

免费定制整装家居

一站置家 全程无忧 一省到底
hide.png

当前位置: 首页 > 装修案例效果图 > 万锦紫园

万锦紫园 87平 现代简约风格效果图

收藏
案例风格 现代简约 案例户型 三居 案例面积 87平米
楼盘名称 万锦紫园 设计师 林凤装饰设计师 案例类型 婚房

设计理念:本案为现代风格的设计,整体简单、明亮、对比感强烈。

客厅
第1张
第2张
第3张
餐厅
第1张
卫生间
第1张
厨房
第1张
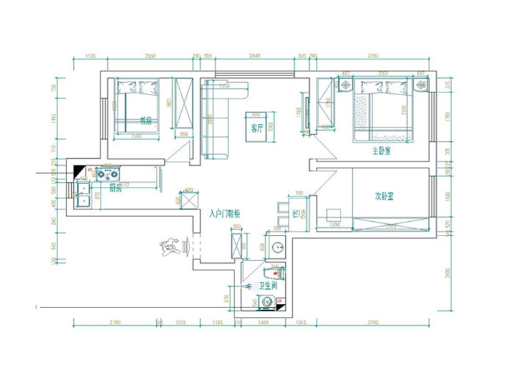
户型图
第1张
  • 案例详情

孟祥鹏-万锦紫园87平米现代风格-客厅3.jpg 孟祥鹏-万锦紫园87平米现代风格-客厅.jpg 孟祥鹏-万锦紫园87平米现代风格-客厅二.jpg

客厅和餐厅比较方正,所以做了四周的板式石膏线做装饰,电视墙面采用竖纹一体式壁纸做装饰,美观的同时更突显电视背景的整体感。

孟祥鹏-万锦紫园87平米现代风格-餐厅.jpg

餐厅紧挨着客厅,在一个大空间也有自己的独立空间,亮点在于灯饰做出了完美的区域划分。

卫生间.jpg 孟祥鹏-万锦紫园87平米现代风格-厨房二.jpg

宽敞明亮的厨房,灰色布纹的上下橱柜和墙地砖形成了鲜明的对比,超大的空间满足两位主人可以同时在这样的厨房空间里自由的展示自己的厨艺。

孟祥鹏-万锦紫园87平米现代风格-户型图.jpg

案例设计师

林凤装饰设计师

设计师:林凤装饰设计师

从业时间:10年

设计理念:用灵魂感知梦一般的空间

预约设计师

算算你家装修多少钱

报名即享丰厚赠品,享半价装修

免费报价
咨询热线:400-656-9909
20190221103704574636.jpg

精品设计案例

20180612134930523248.jpg 服务号二维码.jpg