立即预约 立即预约
免费定制整装家居

免费定制整装家居

一站置家 全程无忧 一省到底
hide.png

当前位置: 首页 > 装修案例效果图 > 三盛颐景御园

三盛颐景御园 98平 北欧风格效果图

收藏
案例风格 北欧 案例户型 三居 案例面积 98平米
楼盘名称 三盛颐景御园 设计师 林凤装饰设计师 案例类型 婚房

设计理念:本案整体风格为北欧风格,在建筑设方面,就是室内的顶、墙、地三个面,完全不用纹样和图案装饰,只用线条、色块来区分点缀。在营造天人合一的自然气氛里,北欧人似乎有着不可替代的天赋。永远是材质的精挑细选,工艺的至纯至真手工艺,这种在现代工业社会被看作是活标本的技术,仍然在北欧国家的设计中广泛使用。

客厅
第1张
第2张
第3张
第4张
卧室
第1张
卫生间
第1张
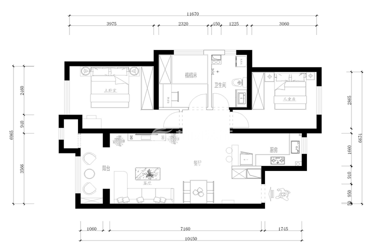
户型图
第1张
  • 案例详情

三盛颐景御园-98㎡-北欧风格  -厨房.jpg 三盛颐景御园-98㎡-北欧风格 -客厅.jpg 三盛颐景御园-98㎡-北欧风格  -客厅.jpg 三盛颐景御园-98㎡-北欧风格-客厅.jpg

客餐厅完全连接在一起,在这次的设计手法上并没有将其分割,而是借助这个优点,相互借景的设计手法将其连在一起,互相借力,使其空间显得明亮和宽敞,餐厅是留给聚会来使用,而在厨房空间里增设一组吧台,不但可以吃早餐用,而且还可以增加情调,生活可以多样化! 客厅的壁纸则是衬托整个风格的主打颜色,非常出彩的衬托出家具的质感和材质!有重点,有明暗,有对比,整体效果会比较立体!

三盛颐景御园-98㎡-北欧风格 (7) -次卧.jpg

对于主卧室,现代的风格搭配的家具,体现业主对生活的态度。

三盛颐景御园-98㎡-北欧风格  -卫生间.jpg

卫生间空间经典的黑白灰,在设计上主要满足功能的需求和实用性!让每个物品彰显主人的个性!

三盛颐景御园-98㎡-北欧风格 - 平面布置图.jpg

案例设计师

林凤装饰设计师

设计师:林凤装饰设计师

从业时间:11年

设计理念:以不退潮流的美学演绎空间,在和谐里激发出知性优雅的奢华主义

预约设计师

算算你家装修多少钱

报名即享丰厚赠品,享半价装修

免费报价
咨询热线:400-656-9909
20190221103704574636.jpg

精品设计案例

20180612134930523248.jpg 服务号二维码.jpg