立即预约 立即预约
免费定制整装家居

免费定制整装家居

一站置家 全程无忧 一省到底
hide.png

当前位置: 首页 > 装修案例效果图 > 碧桂园繁华里

碧桂园繁华里 83平 工业风风格效果图

收藏
案例风格 工业风 案例户型 二居 案例面积 83平米
楼盘名称 碧桂园繁华里 设计师 林凤装饰设计师 案例类型 婚房

设计理念:本案以工业风为主,以黑白灰色系营造出空间的冷静、理性。加入的铁艺、裸砖墙、复古灯、满足客户的需求,人们对审美要求更高。从很大的程度上阐述了一种简单洒脱的生活态度,也反应了现代生活重压下人们对简化生活的追求。

客厅
第1张
第2张
第3张
餐厅
第1张
卧室
第1张
卫生间
第1张
厨房
第1张
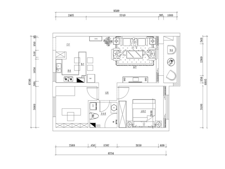
户型图
第1张
  • 案例详情

碧桂园繁华里-83-工业风格-客厅1.jpg 碧桂园繁华里-83-工业风格-客厅2_副本.jpg 碧桂园繁华里-83-工业风格-书房.jpg

客餐厅在这次的设计手法上并没有将其分割,开放式的厨房空间与吧台紧密的连接在一起,吧台的设计高度满足了人体工程学的尺寸,在高度上根据业主的身高来量身定制,并增加一组光源打亮吧台,突出重点,氛围很强大。

碧桂园繁华里-83-工业风格-餐厅.jpg 碧桂园繁华里-83-工业风格-主卧室.jpg

对于主卧室,工业风的风格搭配的家具,体现业主对生活的态度。

碧桂园繁华里-83-工业风格-卫生间.jpg

卫生间干湿分区,卫生间设计应该以实用大方、安全方便、易于清洁、美观简洁为主,卫生间会长期和水打交道,因此内部装修应该做好防水措施,浴室的墙壁和地面应该选择防水防潮耐腐蚀的优质材料,地板款式也尽量以简洁大规格防滑的瓷砖为主,整体应该给人一种明亮简洁的感觉,避免过度的繁琐设计,给人一种累赘感。

碧桂园繁华里-83-工业风格-餐厅1.jpg

对于厨房功能及操作台面要求,储物空间相当强大,橱柜的颜色胡桃木色为准,利用颜色的对比,墙砖与橱柜的颜色差异,形成空间层次感,收纳空间合理利用。功能分区很明确,开放式厨房和吧台式设计彰显主人品味。

碧桂园繁华里-83-工业风格-户型图.jpg

案例设计师

林凤装饰设计师

设计师:林凤装饰设计师

从业时间:11年

设计理念:以不退潮流的美学演绎空间,在和谐里激发出知性优雅的奢华主义

预约设计师

算算你家装修多少钱

报名即享丰厚赠品,享半价装修

免费报价
咨询热线:400-656-9909
20190221103704574636.jpg

精品设计案例

20180612134930523248.jpg 服务号二维码.jpg