立即预约 立即预约
免费定制整装家居

免费定制整装家居

一站置家 全程无忧 一省到底
hide.png

当前位置: 首页 > 装修案例效果图 > 奉天九里

奉天九里 87平 现代简约风格效果图

收藏
案例风格 现代简约 案例户型 二居 案例面积 87平米
楼盘名称 奉天九里 设计师 林凤装饰设计 案例类型 婚房

设计理念:本案以现代风格为主题,现代设计追求的是空间实用性和灵活性。根据相互间的功能关系组合而成,功能空间相互渗透,空间的利用率也会得到极大的提升,冷暖色调相结合给予视觉上的冲击。

客厅
第1张
第2张
第3张
餐厅
第1张
卧室
第1张
卫生间
第1张
厨房
第1张
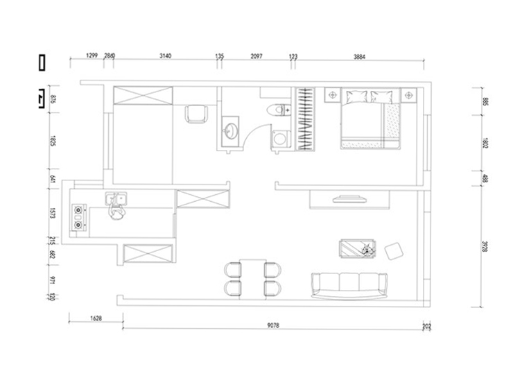
户型图
第1张
  • 案例详情

刘鹏-奉天九里-85-现代风格-客厅 (2).jpg 刘鹏-奉天九里-85-现代风格-客厅 (3).jpg 刘鹏-奉天九里-85-现代风格-客厅.jpg

现代风格客厅布置宜简洁自然,色彩和谐,客厅大面积使用冷色,搭配暖色系的地板,显得空间不会特别冷清,大面积使用白色和灰色,采用少量米黄色作为搭配,冷暖结合,使得空间既灵活又不是现代感。

刘鹏-奉天九里-85-现代风格-餐厅.jpg

餐厅与客厅相通,整体风格色调相互搭配,墙面搭配现代感极强的装饰画,使得空间不失单调,深灰色的餐桌搭配浅灰色的餐椅,与客厅的沙发,茶几相互映衬,使得空间更加立体更加饱满。

刘鹏-奉天九里-85-现代风格-卧室1.jpg

卧室作为提供休息的地方,温馨的现代风格卧室,色彩简洁明快,空间整体以米黄色为主,搭配现代感的装饰画使得空间更加生动,温馨的氛围充斥在整个屋内,使奔波一天的主人,回家便能享受家的温暖

刘鹏-奉天九里-85-现代风格-卫生间.jpg

卫生间整体以暖色调为主,与客厅大面积的冷色调相对,白色的洁具使得温馨的屋内更加现代化,视觉上既舒适又时尚。

刘鹏-奉天九里-85-现代风格-厨房.jpg

白色的橱柜搭配米黄色的操作台面使得空间明亮整洁,冷暖相见色彩明快的墙面使得整个空间活泼又不失沉稳。

刘鹏-奉天九里-85-现代风格-平面.jpg

案例设计师

林凤装饰设计

设计师:林凤装饰设计

从业时间:9年

设计理念:追求艺术带给生活最美的体验

预约设计师

算算你家装修多少钱

报名即享丰厚赠品,品质装修

免费报价
咨询热线:400-656-9909
20190221103704574636.jpg

精品设计案例

20180612134930523248.jpg 服务号二维码.jpg