立即预约 立即预约
免费定制整装家居

免费定制整装家居

一站置家 全程无忧 一省到底
hide.png

当前位置: 首页 > 装修案例效果图 > 金地铂悦

金地铂悦 79平 现代简约风格效果图

收藏
案例风格 现代简约 案例户型 二居 案例面积 79平米
楼盘名称 金地铂悦 设计师 丁强 案例类型 改善性住宅

设计理念:本案的设计风格为现代中的黑白灰色系,黑白灰色系是现代风格中的典型色系,也是经典色系,本案打造的就是黑白灰中的经典。

客厅
第1张
第2张
第3张
第4张
第5张
餐厅
第1张
卧室
第1张
卫生间
第1张
厨房
第1张
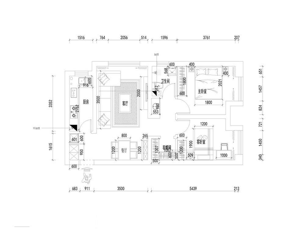
户型图
第1张
  • 案例详情

丁强-金地铂悦-79平现代-背景墙1.jpg 丁强-金地铂悦-79平现代-客厅1.jpg 丁强-金地铂悦-79平现代-客厅2.jpg 丁强-金地铂悦-79平现代-客厅3.jpg 丁强-金地铂悦-79平现代-客厅4.jpg

客厅做的很简单,棚面就是简单的工艺造型石膏线,背景墙也未采用最原始的造型设计,而是采用简单的素色壁纸作为靓点,从整个客厅看,其实有的时候设计不仅仅是造型的运用也是颜色的运用,简单的风格简单做这样才会觉得舒适。

丁强-金地铂悦-79平现代-餐厅1.jpg

餐厅没有任何的设计表现,墙面就是白色的乳胶漆,以及简单的装饰品,棚线是跟客厅相同的,餐厅最有特点无非就是餐桌了,餐桌是整个餐厅的最大亮点。

丁强-金地铂悦-79平现代-卧室.jpg 丁强-金地铂悦-79平现代-卫生间.jpg

由于卫生间空间不是特别大,所以采用浅色瓷砖,黑白砖作为主题搭配。

丁强-金地铂悦-79平现代-厨房.jpg

厨房瓷砖采用仿古小块砖作为墙面装饰,灰色烤漆的橱柜为搭配,现代感十足。

丁强-金地铂悦-79平现代-平面图.jpg

案例设计师

丁强

设计师:丁强

从业时间:8年

设计理念:用心观察生活,感悟人生真谛,让设计与生活互动

预约设计师

算算你家装修多少钱

报名即享丰厚赠品,享半价装修

免费报价
咨询热线:400-656-9909
20190221103704574636.jpg

精品设计案例

20180612134930523248.jpg 服务号二维码.jpg