立即预约 立即预约
免费定制整装家居

免费定制整装家居

一站置家 全程无忧 一省到底
hide.png

当前位置: 首页 > 装修案例效果图 > 星河湾

星河湾 267平 混搭风格效果图

收藏
案例风格 混搭 案例户型 四居 案例面积 267平米
楼盘名称 星河湾 设计师 林凤设计师 案例类型 婚房

设计理念:“混搭”装饰风格是一种特异的表现形式,它可以摆脱沉闷,突出重点,符合了当今人们追求个性、随意的生活态度。 需要强调的是,“混搭”不是百搭,不是人为地制造出一个“四不像”,而是为了达到1+1>2的效果。因此,风格设计时能处理好两个以上不同风格作品在同一个空间里的搭配与协调,这样才能达到“混搭”目的。

客厅
第1张
第2张
第3张
餐厅
第1张
第2张
第3张
卧室
第1张
第2张
卫生间
第1张
第2张
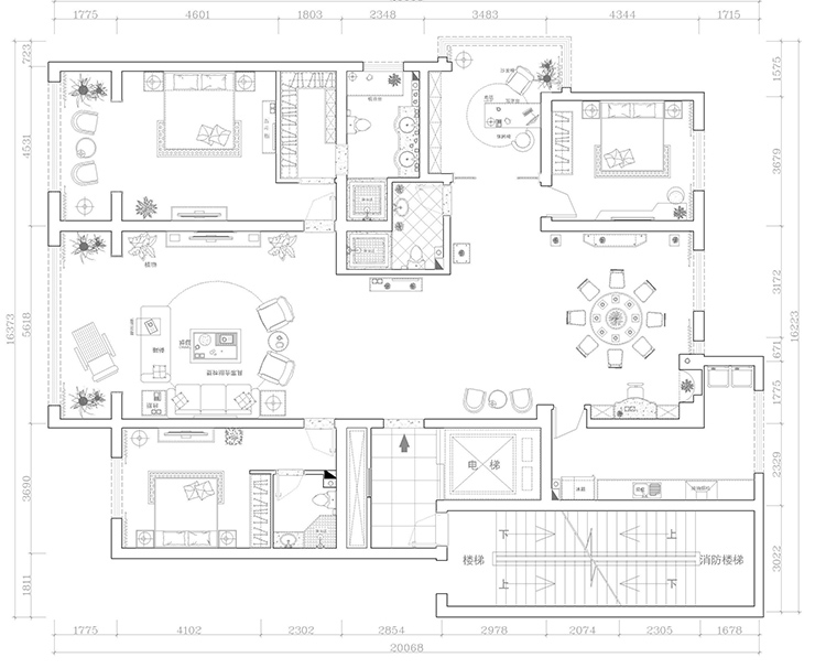
户型图
第1张
  • 案例详情

星河湾-267平米-混搭风格-客厅4.jpg 星河湾-267平米-混搭风格-客厅3.jpg 星河湾-267平米-混搭风格-客厅2.jpg

这一户我也是改了好久的方案。从棚到低,从南到北,地面的最终方案并没有选择很常见的斜拼,波打线之类的,是用波打线贯穿的,挺酷的,有壁灯有台灯,相互呼应,颜色也并没有因为业主是个女孩子就特别鲜艳跳跃,建议还是选择了成熟内敛的。客户接受了、

星河湾-267平米-混搭风格-餐厅4.jpg 星河湾-267平米-混搭风格-餐厅3.jpg 星河湾-267平米-混搭风格-餐厅2.jpg

餐厅那个大穹顶着实没少花钱。反正条件还挺好的。确实效果是超酷超酷的。餐厅除了那个大穹顶其他的我觉得都挺简单的了。没什么好说的了。

星河湾-267平米-混搭风格-卧室1.jpg 星河湾-267平米-混搭风格-卧室2.jpg

我少有的客户,卧室强烈想要做暗色调的。而且是个女孩的房间,个人感觉些许压抑、一个人喜欢一个样。尊重业主是我对行业最大的信赖。

星河湾-267平米-混搭风格-卫生间1.jpg 星河湾-267平米-混搭风格-卫生间2.jpg 星河湾-267平米-混搭风格-平面布置.jpg

案例设计师

林凤设计师

设计师:林凤设计师

从业时间:8年

设计理念:先客户之忧而忧,后客户之乐而乐

预约设计师

算算你家装修多少钱

报名即享丰厚赠品,享半价装修

免费报价
咨询热线:400-656-9909
20190221103704574636.jpg

精品设计案例

20180612134930523248.jpg 服务号二维码.jpg