立即预约 立即预约
免费定制整装家居

免费定制整装家居

一站置家 全程无忧 一省到底
hide.png

当前位置: 首页 > 装修案例效果图 > 威尼斯

威尼斯 140平 新中式风格效果图

收藏
案例风格 新中式 案例户型 三居 案例面积 140平米
楼盘名称 威尼斯 设计师 林凤设计师 案例类型 婚房

设计理念:“把中国传统风格揉进现代时尚元素的一种流行趋势。 这种风格既保留了传统文化,又体现了时代特色,突破了中国传统风格中沉稳有余,活泼不足等常见的弊端。其特点是常常使用传统的造园手法、运用中国传统韵味的色彩、中国传统的图案符号、植物空间的营造等来打造具有中国韵味的现代景观空间。

客厅
第1张
第2张
第3张
第4张
第5张
餐厅
第1张
卧室
第1张
卫生间
第1张
第2张
厨房
第1张
第2张
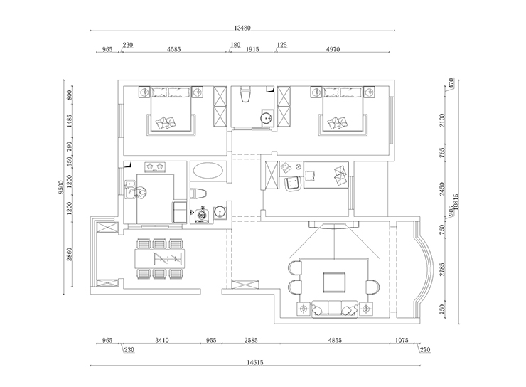
户型图
第1张
  • 案例详情

威尼斯-140平米-新中式-客厅3.jpg 威尼斯-140平米-新中式-客厅1.jpg 威尼斯-140平米-新中式-客厅4.jpg 威尼斯-140平米-新中式-客厅2.jpg 威尼斯-140平米-新中式-客厅7.jpg

客厅是传统与现代居室风格的碰撞,设计师以现代的装饰手法和家具,结合古典中式的装饰元素,来呈现亦古亦今的空间氛围。中式风格的古色古香与现代风格的简单素雅自然衔接,使生活的实用性和对传统文化的追求同时得到了满足。影视墙的造型简洁现代,却在醒目位置饰以中式书法,这种绝妙的组合给人以强烈的视觉意志力,成为时尚与古典的柔媚结合。

威尼斯-140平米-新中式-餐厅.jpg

中式餐厅的设计,离不开桌、椅、条案、柜子这些基本元素,中式餐厅中的桌子一般呈方形或长方形,以体现用餐人之间的尊卑等级关系。现在我们所见的中式椅子的形式,多为明清时代流传下来的款式,样式繁多,风格呈现简 中式餐厅设计说明通过对餐厅整体布局的把握,传达出对生活的重视和对怀旧的留 念。餐厅因起身坐下动作频繁,因此“靠背椅”是适用的款式。单一靠背或呈梳背,雕刻精致、古朴典雅,适当的弧度符合现代人体工程学。省略两旁扶手,更便于活 动。

威尼斯-140平米-新中式-卧室.jpg

卧室更接近于简约风格,业主喜欢住的地方不要那么多的装饰,想要清新简约,那就简单点咯~

威尼斯-140平米-新中式-卫生间2.jpg 威尼斯-140平米-新中式-卫生间3.jpg 威尼斯-140平米-新中式-厨房2.jpg 威尼斯-140平米-新中式-厨房1.jpg 威尼斯-140平米-新中式-平面布置图.jpg

案例设计师

林凤设计师

设计师:林凤设计师

从业时间:8年

设计理念:先客户之忧而忧,后客户之乐而乐

预约设计师

算算你家装修多少钱

报名即享丰厚赠品,品质装修

免费报价
咨询热线:400-656-9909
20190221103704574636.jpg

精品设计案例

20180612134930523248.jpg 服务号二维码.jpg