立即预约 立即预约
免费定制整装家居

免费定制整装家居

一站置家 全程无忧 一省到底
hide.png

当前位置: 首页 > 装修案例效果图 > 中海和平之门二期

中海和平之门二期 84平 现代简约风格效果图

收藏
案例风格 现代简约 案例户型 二居 案例面积 84平米
楼盘名称 中海和平之门二期 设计师 全案整装 案例类型 婚房

设计理念:本案是一对80后的年轻夫妻居住,本案以现代简约的设计为主,装修的时候不一定华丽复杂才能显示一个人的品味,简约而不简单也是一种生活态度。在整体空间上即有划分又与色彩变换协调统一.

客厅
第1张
第2张
第3张
第4张
第5张
餐厅
第1张
第2张
卧室
第1张
卫生间
第1张
厨房
第1张
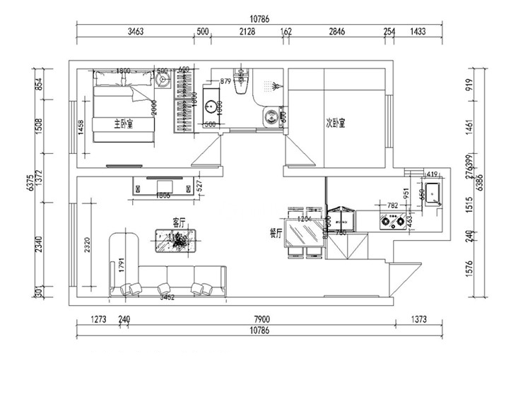
户型图
第1张
  • 案例详情

S13-刘媛媛-中海和平之门二期-84平-现代简约-客厅 (1).jpg S13-刘媛媛-中海和平之门二期-84平-现代简约-餐厅 (3).jpg S13-刘媛媛-中海和平之门二期-84平-现代简约-客厅 (2).jpg S13-刘媛媛-中海和平之门二期-84平-现代简约-客厅 (3).jpg S13-刘媛媛-中海和平之门二期-84平-现代简约-客厅 (4).jpg

本案整体客厅运用了清晰淡雅的纯白色乳胶漆,个性与艺术并存的沙发挂画,简约的直线吊棚在咖色的电视背景墙衬下更加醒目,简单的工艺石膏配上大气个性的吊灯,现代韵味特别浓.地面经过多重考虑我选择暖色系的抛釉砖,与餐厅相通相连.

S13-刘媛媛-中海和平之门二期-84平-现代简约-餐厅 (2).jpg S13-刘媛媛-中海和平之门二期-84平-现代简约-餐厅 (1).jpg

本案餐厅作为客厅的一部分出现,餐椅餐桌的色彩搭配,抽象时尚的挂画配饰,给小空间一个大亮点,设计师运用极简的工艺石膏线与咖啡色的餐厅墙面巧妙的连接在一起,.即独立,在整体设计上又能起到了空间划分的效果.

S13-刘媛媛-中海和平之门二期-84平-现代简约-主卧室.jpg

以灰色时尚为主打的卧室.高级灰色壁纸墙面个与高大尚的软包床头融为一体,温馨的床头小灯把整个空间映衬的更加清馨,奶白色柔美的纱帘与个性的地毯相融合.使得整个卧室更加清馨典雅。

S13-刘媛媛-中海和平之门二期-84平-现代简约-卫生间.jpg

以温馨为主题的卫生间,奶白色的卫浴在灰色防古墙砖的映衬下更加的有个性,独立的淋浴空间与卫浴的摆放错落有序。

S13-刘媛媛-中海和平之门二期-84平-现代简约-厨房.jpg

以清新为主题的L型厨房,特别个性的奶白色厨柜在高雅白色的墙砖映衬下更加有醒目.的色的理石台面,与墙面批配的铝扣板吊棚.无一不突显着个性与魅力.

S13-刘媛媛-中海和平之门二期-84平-现代简约-平面布置图.jpg

案例设计师

全案整装

设计师:全案整装

从业时间:20年

设计理念:美而不虚,华而不俗,在有限的空间,创造无限的可能。

预约设计师

算算你家装修多少钱

报名即享丰厚赠品,品质装修

免费报价
咨询热线:400-656-9909
20190221103704574636.jpg

精品设计案例

20180612134930523248.jpg 服务号二维码.jpg