立即预约 立即预约
免费定制整装家居

免费定制整装家居

一站置家 全程无忧 一省到底
hide.png

当前位置: 首页 > 装修案例效果图 > 阳光100

阳光100 65平 现代简约风格效果图

收藏
案例风格 现代简约 案例户型 二居 案例面积 65平米
楼盘名称 阳光100 设计师 林凤装饰设计师 案例类型 婚房

设计理念:本案以现代简约风格为主的设计,温馨,舒适,线条简单,室内空间大方。现代简约风格不是造型简陋、工艺简单的为简约设计,其从布局到材料的颜色搭配、物品的摆放都非常讲究,比起繁华的生活环境,人们也更倾向于轻松随意的生活环境,所以现代简约风格理念所说明的流行趋势是势不可挡的。

客厅
第1张
第2张
第3张
餐厅
第1张
卧室
第1张
厨房
第1张
阳台
第1张
第2张
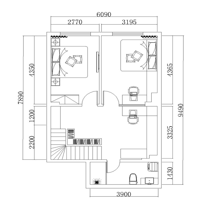
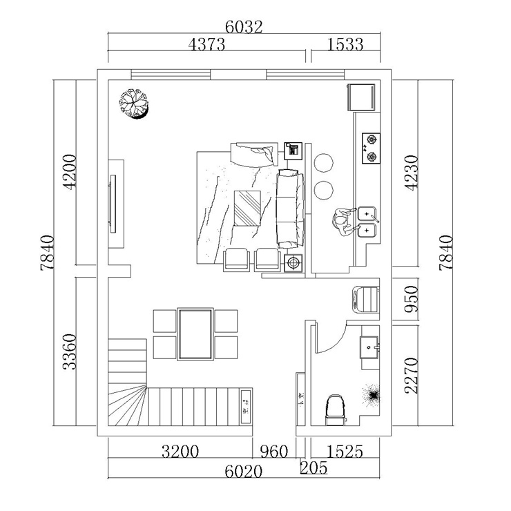
户型图
第1张
第2张
  • 案例详情

阳光100-65平复式-现代风格-客厅.jpg 阳光100-65平复式-现代风格-客厅2.jpg 阳光100-65平复式-现代风格-客厅3.jpg

现代简约的客厅有的不只是简单大气,更多的是温馨和随意。通过镜子的反光在视觉上增大了房间的宽度,暖色的灯光配置使得家里更加温暖。

阳光100-65平复式-现代风格-餐厅.jpg

餐厅即简约而不简单,餐厅的棚面与墙面相呼应,是其一大亮点。

阳光100-65平复式-现代风格-卧室.jpg

简约的卧室兼备了 和谐、舒适、干净的特点,受到了越来越多业主的喜爱。能够让广大业主更加放松。

阳光100-65平复式-现代风格-厨房.jpg

厨房主要以深色地板砖在搭配白色的实木橱柜门板,深浅搭配颜色的运用,让厨房整体更加干净简洁,让女主人能够享受烹饪的乐趣。

阳光100-65平复式-现代风格-阳台2.jpg 阳光100-65平复式-现代风格-阳台.jpg 阳光100二楼-65平复式-平面布置图.jpg 阳光100一楼-65平复式-平面布置图.jpg

案例设计师

林凤装饰设计师

设计师:林凤装饰设计师

从业时间:6年

设计理念:家居设计是一种艺术表现方式,是设计师与客户共同参与的一项创作活动。

预约设计师

算算你家装修多少钱

报名即享丰厚赠品,品质装修

免费报价
咨询热线:400-656-9909
20190221103704574636.jpg

精品设计案例

20180612134930523248.jpg 服务号二维码.jpg