立即预约 立即预约
免费定制整装家居

免费定制整装家居

一站置家 全程无忧 一省到底
hide.png

当前位置: 首页 > 装修案例效果图 > 保利达江湾城

保利达江湾城 140平 美式风格效果图

收藏
案例风格 美式 案例户型 三居 案例面积 140平米
楼盘名称 保利达江湾城 设计师 林凤设计师 案例类型 婚房

设计理念:此案设计依照河景房而设计,前后拥有大阳台,通风采光好,户型方正,结构合理,空间高。本案在设计手法上,以美式风格为主调,随意不过分张扬,而又恰到好处地把典雅之气渗透到每个角落,既突出房子本身的自然优势又适当彰显业主的个人品味,美式家具,古典灯具及欧式笔壁炉相融合,品位更加深刻。

客厅
第1张
第2张
第3张
第4张
卧室
第1张
卫生间
第1张
厨房
第1张
儿童房
第1张
户型图
第1张
  • 案例详情

保利达江湾城-140平-美式风格-客厅1.jpg 保利达江湾城-140平-美式风格-客厅2.jpg 保利达江湾城-140平-美式风格-客厅3.jpg 保利达江湾城-140平-美式风格-客厅4.jpg

客厅作为整个设计的亮点,设计师都延续美式最经典的护墙设计,让木的质感与瓷砖冷暖对比,使得整个空间更加立体。做旧纹理的墙板,在茶几位置做了拼花处理,看起来像一个地毯,让地面好打理又有层次感!

保利达江湾城-140平-美式风格-主卧.jpg

主卧主要是强调卧室的氛围感,依旧是经典的美式感觉。清新的色调与温馨的暖色完美呈现,床头简单床头造型搭配几何感强烈的壁纸,使卧室空间氛围更加活跃。

保利达江湾城-140平-美式风格-卫生间.jpg

原有的空调外挂机位,改到室内,增大了卫生间得面积,使卫生间得布局更合理,而又宽敞。简单的仿古砖古朴有散发着特别。

保利达江湾城-140平-美式风格-厨房.jpg

厨房白色实木橱柜搭配简洁而又粗犷的复古石材使厨房空间更加清爽简洁不但方便实用,而且还很美观。

保利达江湾城-140平-美式风格-客卧.jpg

儿卧运用仿格子布壁纸和墙板等不同材质使整体空间更有层次感,强烈的色彩使整个房间更加灵动。

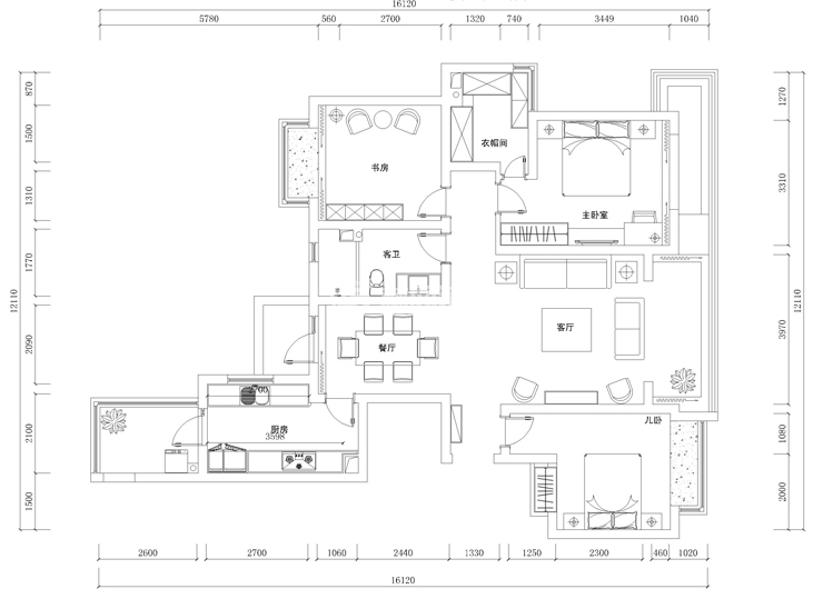
保利达江湾城-140平-美式风格-平面图.jpg

案例设计师

林凤设计师

设计师:林凤设计师

从业时间:13年

设计理念:设计是用心雕琢的艺术品

预约设计师

算算你家装修多少钱

报名即享丰厚赠品,品质装修

免费报价
咨询热线:400-656-9909
20190221103704574636.jpg

精品设计案例

20180612134930523248.jpg 服务号二维码.jpg