立即预约 立即预约
免费定制整装家居

免费定制整装家居

一站置家 全程无忧 一省到底
hide.png

当前位置: 首页 > 装修案例效果图 > 五矿紫晶御府

五矿紫晶御府 113平 现代简约风格效果图

收藏
案例风格 现代简约 案例户型 三居 案例面积 113平米
楼盘名称 五矿紫晶御府 设计师 林凤装饰精英设计师 案例类型 旧房改造

设计理念:业主此套住房是居住用房、比较舒适度,同时对居住环境有一定要求。对原户型的布局不是很满意、希望重新规划。

客厅
第1张
第2张
第3张
餐厅
第1张
第2张
卧室
第1张
卫生间
第1张
厨房
第1张
第2张
门厅
第1张
第2张
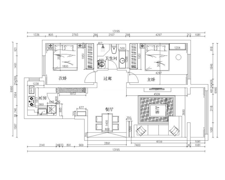
户型图
第1张
  • 案例详情

五矿紫晶御府-113-都市风格-客厅(1).jpg 五矿紫晶御府-113-都市风格-客厅(2).jpg 五矿紫晶御府-113-都市风格-客厅(3).jpg

客厅整体采用层次感吊顶设计顶设计,符合年轻人现在简约不简单的生活理念。电视背景墙与沙发背景墙相呼应。文化石富有原始、自然、古朴的韵与壁纸花纹自由、规格、现代的美相得益彰。坐在沙发上独享一方天地,自享家带来的休闲自在。

五矿紫晶御府-113-都市风格-餐厅(1).jpg 五矿紫晶御府-113-都市风格-餐厅(2).jpg

餐厅的餐桌质朴我点缀,一餐一桌一碟,足以。满足最原始对食物的渴望。配上纯木色酒柜,在就餐的同时可以欣赏自己平时的收藏,近在咫尺,随手就可与好友分享。

五矿紫晶御府-113-都市风格-主卧.jpg

卧室的床头以一张现代艺术画占据、如同卧室应有的安静,温馨一样,结合床头柜台灯的设计造型上更具有观赏性的同时、夜晚的照明也显得尤为实用。

五矿紫晶御府-113-都市风格-卫生间.jpg

卫生间采用暖色地砖上墙款,木纹的纹理在视觉方面拉伸了空间感,同时浴屏的使用恰好实现了干湿分离作用,浴室柜则采用砌筑的形式,与墙面效果呼应相一致。

五矿紫晶御府-113-都市风格-厨房(2).jpg 五矿紫晶御府-113-都市风格-厨房(1).jpg

厨房采用L型布局、最大化的增加空间利用率,柜门板采用极具现代风格的白色材质、一门之隔的厨房风格和客厅相呼应。

五矿紫晶御府-113-都市风格-门厅.jpg 五矿紫晶御府-113-都市风格-玄关.jpg 五矿紫晶御府-113-都市风格-平面图.jpg

案例设计师

林凤装饰精英设计师

设计师:林凤装饰精英设计师

从业时间:9年

设计理念:艺术充满生活 设计无处不在

预约设计师

算算你家装修多少钱

报名即享丰厚赠品,享半价装修

免费报价
咨询热线:400-656-9909
20190221103704574636.jpg

精品设计案例

20180612134930523248.jpg 服务号二维码.jpg